219B Gooch Street, Thornbury VIC 3071
-
3
-
2
-
2
Boutique Bliss in a Thriving Thornbury Locale
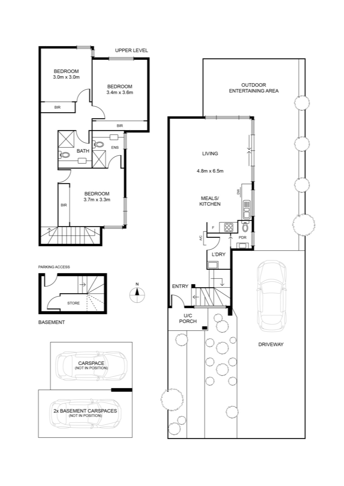
With its own street frontage, first-class features and abundance of light throughout, this modern townhouse (1 of only 4) delivers a lifestyle of low-maintenance perfection all enviably positioned in a quiet and convenient Thornbury neighbourhood. Immediately impressive, the home's intelligently designed interior showcases a large master bedroom with towering ceilings and private ensuite, together with two additional bedrooms, stylish main bathroom and guest powder room (third WC). Adding to the appeal is a spacious and versatile open-plan living/dining area accompanied by a tastefully-appointed kitchen complete with stone benchtops, Ilve cooking appliances and dishwasher. Other highlights of this trendy townhouse include split-system heating and cooling, alarm and video intercom, solar/gas hot water service, full laundry, under-stair storeroom and built-in robes to all bedrooms. Rounding out this perfect package of easy-living excellence is a spacious courtyard with extensive paving and high fences for privacy plus direct internal access to two secure lower-level parking spaces. Enjoy all the benefits this vibrant inner-urban neighbourhood has to offer walking distance to public transport options, Penders Grove Primary School, the open spaces of Hayes Park and endless Darebin Creek trails, as well as easy access to Station Street/High Street shops and eateries.
*Nelson Alexander Update*
All Nelson Alexander open for inspections and auctions are conducted in accordance with the latest government guidelines. We may request you to wear a mask, use hand sanitiser, refrain from touching any items/fixtures and doors and ask you to provide your contact details. We appreciate your assistance.
