473 Rae Street, Fitzroy North VIC 3068
-
2
-
1
Comfortable semi-detached Victorian home in a prized northside pocket
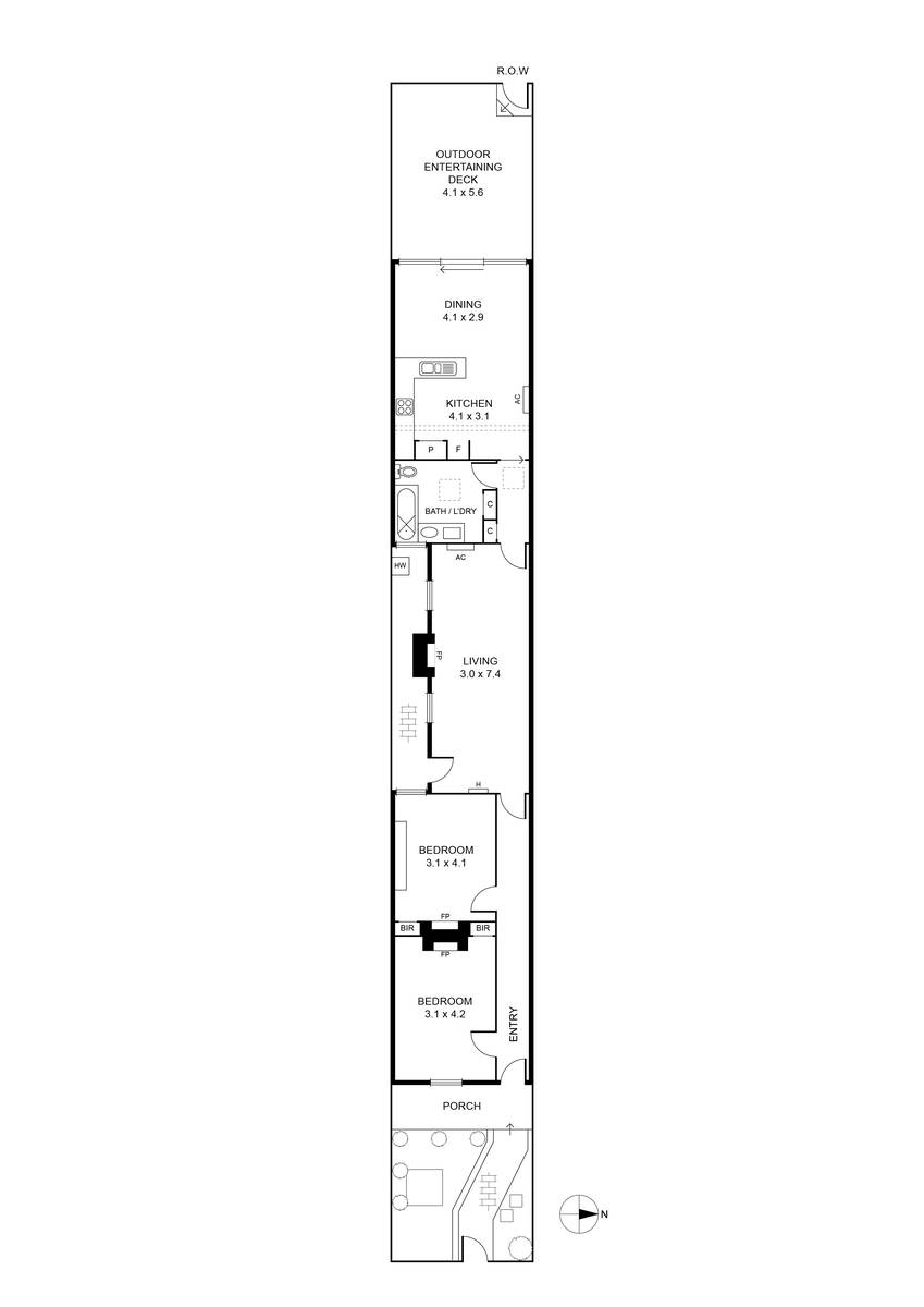
Nestled in a neighbourly community along Fitzroy North's coveted Rae Street, this comfortable Victorian home presents a unique opportunity to personalise and create your dream lifestyle. Surrounded by established residences on a deep block, it boasts generous free flowing interiors, sun soaked outdoor entertaining and scope to renovate and/or build up (STCA). With easy access to the popular Capital City Trail, this property is placed strolling distance to CBD trams, village cafes, Edinburgh Gardens and a selection of schools. Past the Hawthorne brick façade and leadlight entrance are two double sized bedrooms with ornate fireplaces, a bright bathroom with a shower over a bath, spacious open plan living/dining room and large functional kitchen with gas fixtures. Bathed in light at the back is a family area that flows to a marvellous entertaining deck in private surrounds. Enhanced by high ceilings with rosettes, it features integrated laundry facilities, split system a/c, ducted heating to the bedrooms, plus a gas wall heater.
All Nelson Alexander inspections are conducted in accordance with the latest government guidelines. Please check in via the QR code, show your vaccination status via the Service Victoria app, wear a mask, use hand sanitiser, refrain from touching any items/fixtures and doors and provide your contact details. We appreciate your assistance.
