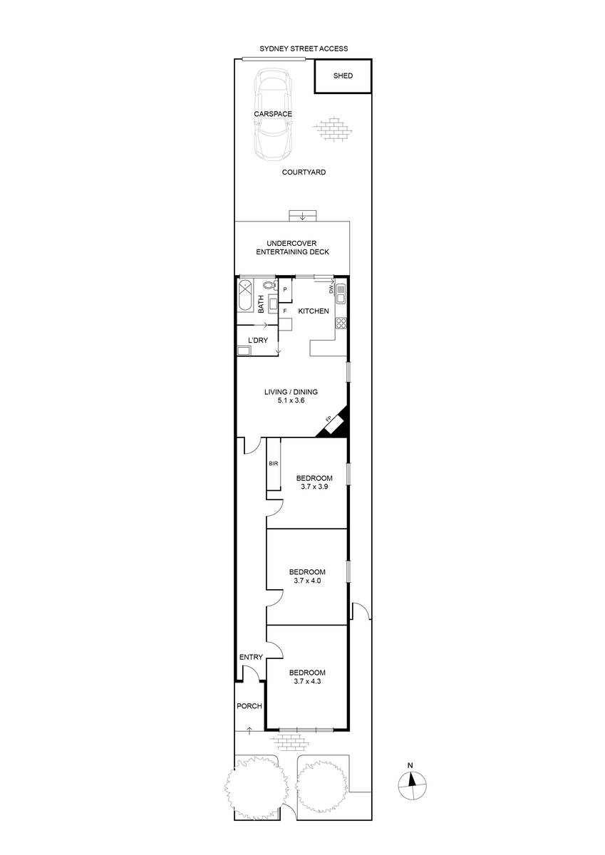
35 Fenton Street, Ascot Vale VIC 3032
-
3
-
1
-
1
Edwardian Belle with Dual Street Frontage
Seller Review
We have dealt with David for the sale with 3
Review by Alan W
