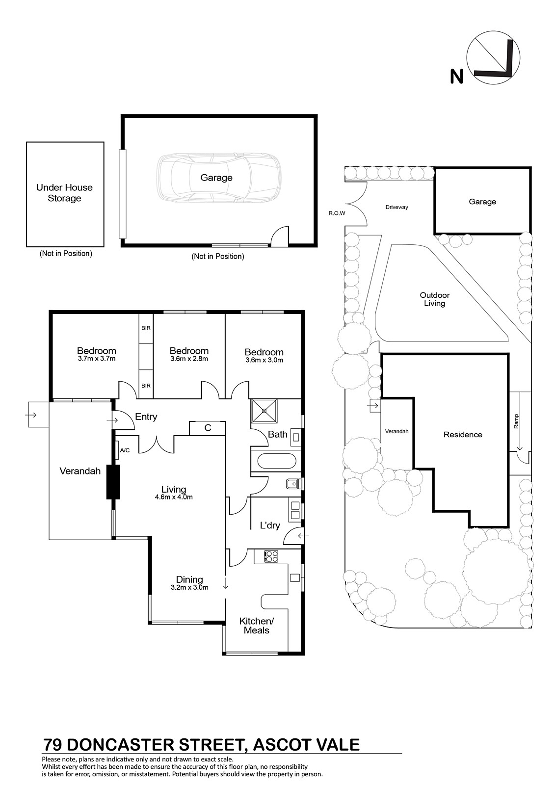
79 Doncaster Street, Ascot Vale VIC 3032
-
3
-
1
-
2
Corner Credentials in a Picture-Perfect Location
Seller Review
Clear communication & was updated frequently. Sold
Review by Anne T
Seller Review
Provided a clear timeline with what was needed
Review by Anne T
