Before the resolutions fade… Discover what your home is worth with a complimentary Nelson Alexander appraisal. Book now.

Menu

64 Cramer Street, Preston VIC 3072

  • 3
  • 1
  • 2

DECO DELIGHT IN WEST PRESTON

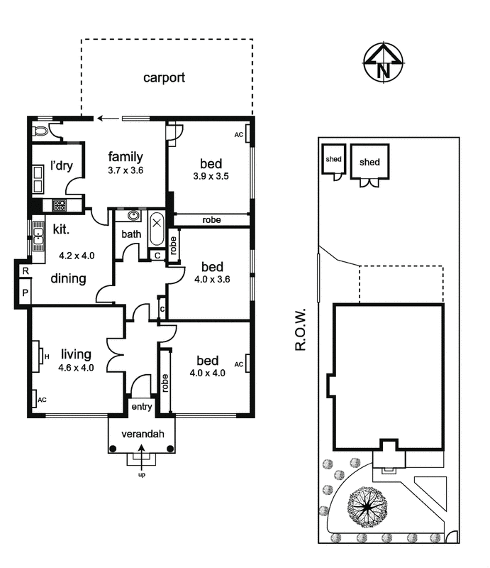
Walking distance to High Street cafes, shops and market, this solid-brick home offers an outstanding lifestyle opportunity with its updated features, quality period details and generous north-facing block. Immaculate throughout, the home's inviting interior highlights three bedrooms (all with built-in robes) and updated central bathroom, elegant formal loungeroom, contemporary-style kitchen/dining with Miele dishwasher and Smeg appliances, separate family room. Adding to its appeal, the home also includes ducted heating, split-system air conditioning (five units), alarm system, authentic Art Deco ceilings, timberwork and polished floorboards, plus an expansive backyard complete with storage sheds, carport via rollerdoor (remote) to side ROW and plenty of room to expand or sub-divide (STCA). Positioned for absolute convenience, it's also close to Preston Station, trams, local parks and Preston West Primary School. Land size approx. 499m2
Agent: Nelson Alexander Pty Ltd

Contact Agent


This site is protected by reCAPTCHA and the Google Privacy Policy and Terms of Service apply.

 
  • 3
  • 1
  • 2

Property Sold

Sold 21/02/2015 Undisclosed