Before the resolutions fade… Discover what your home is worth with a complimentary Nelson Alexander appraisal. Book now.

Menu

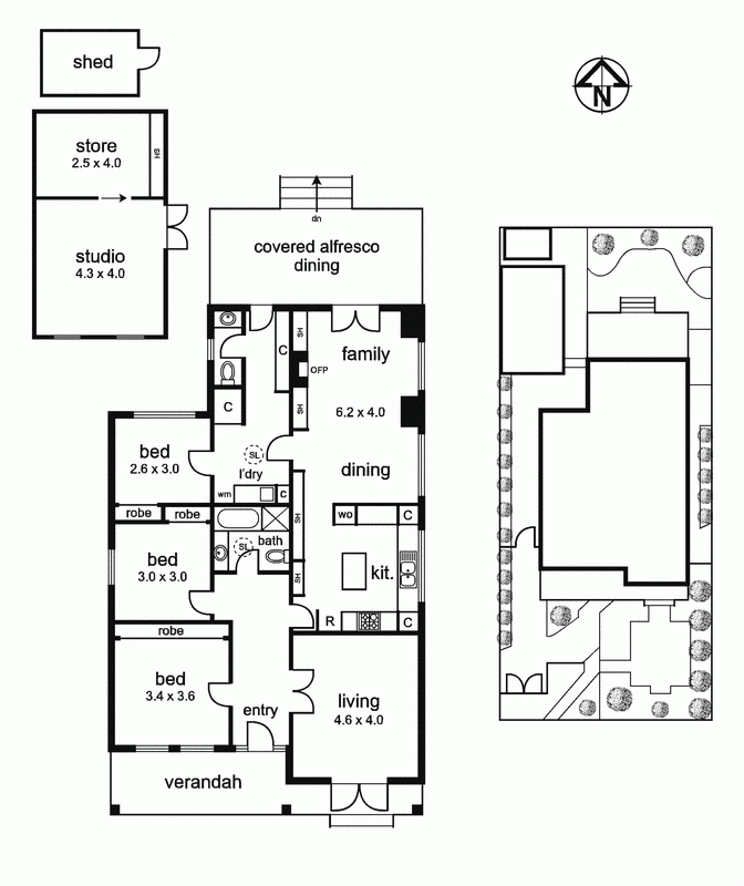
40 Avondale Road, PRESTON VIC 3072

  • 3
  • 1
  • 1

EXTENDED LIVING WITH GORGEOUS GARDEN SURROUNDS!

Superb renovations, versatile design and leafy gardens are the hallmarks of this captivating Californian offering a ready-to-enjoy family lifestyle of quality, flexibility and convenience. Beyond its high front fence and private entertainers' garden, the home's immaculate interior comprises three bedrooms with robes, period-inspired bathroom and additional powder room (second toilet), lounge/dining room (with double doors to the front garden). Add to this a gourmet granite-top kitchen with all-Miele appliances and light-filled living area with feature gas-stone fireplace opening out to a large undercover entertaining deck, sublime north-facing backyard garden and versatile two-room studio complete with polished concrete floors. Other stand-out features include ducted heating, split-system a/c, polished timber floors, ornate ceilings, excellent storage options, as well as two-car front off-street parking. In a quiet Preston pocket, it's close to Plenty Road trams, local schools, easy access to High Street cafes, Preston Station and Preston Market - perfect!
Agent: Nelson Alexander Pty Ltd

Contact Agent


This site is protected by reCAPTCHA and the Google Privacy Policy and Terms of Service apply.

 
  • 3
  • 1
  • 1

Property Sold

Sold 29/11/2014 Undisclosed