The numbers are in. Discover how the market is performing in your area with the latest Nelson Alexander Suburb Report.

Menu

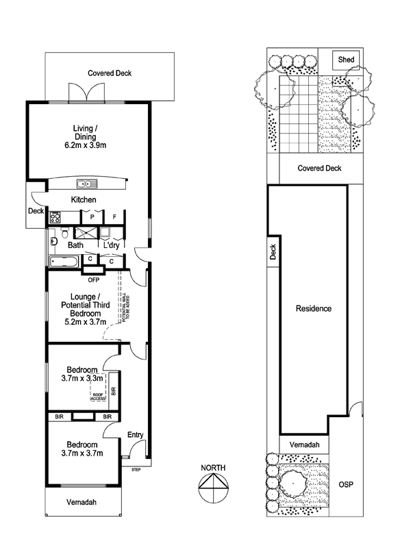
95 Rossmoyne Street, THORNBURY VIC 3071

  • 2
  • 1
  • 1

A seductive combination

Incorporating period charm with cutting edge design, this free standing Edwardian is sure to impress. Open plan living with soaring ceilings and large glass doors opening to a secluded north facing rear garden and outdoor entertaining area, combine to make this property stand out amongst others. Includes two bedrooms (potential 3rd), two generous living zones (formal and informal), designer bathroom and established low maintenance garden. Featuring Miele appliances, polished floors, BIR\\\\\\\'s, hydronic heating, evaporative cooling, OFP, attic storage, secure front gate and OSP. Located only moments from Thornbury Village and transport and will provide quality inner city living.

Agent: Nelson Alexander Pty Ltd

Contact Agent


This site is protected by reCAPTCHA and the Google Privacy Policy and Terms of Service apply.

 
  • 2
  • 1
  • 1

Property Sold

Sold 25/02/2012 $726,000


Thornbury

Find out more --->