Before the resolutions fade… Discover what your home is worth with a complimentary Nelson Alexander appraisal. Book now.

Menu

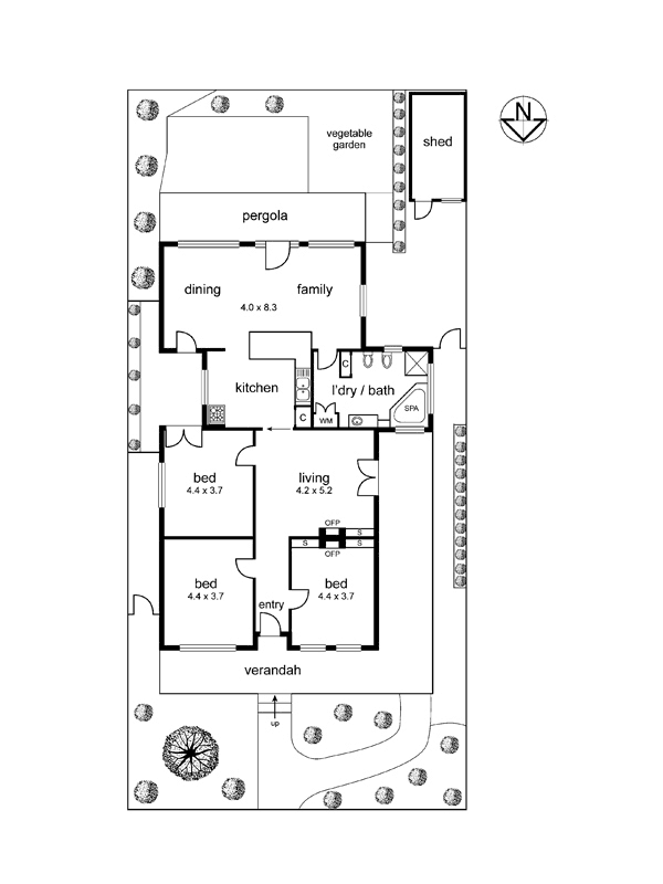
71 Normanby Avenue, THORNBURY VIC 3071

  • 3
  • 1

"Karinya" - A vibrant mix of period charm and contemporary style

Surrounded by landscaped gardens, and as elegant as its gorgeous façade suggests, this Victorian gem offers a fabulous low-maintenance lifestyle of quality, flexibility and Northcote-edge convenience. Filled with natural light, the versatile interior highlights three large bedrooms, delightful bathroom complete with spa, spacious lounge through to open living/dining area and adjoining timber kitchen, plus ducted heating, alarm, high ornate ceilings, open fireplaces and polished floorboards throughout. Step out to a wonderfully private brick-paved courtyard garden featuring established trees and plants, pergola and workshop/storeroom. An impressive home that's ready to move in and enjoy, walk to trams and trains, High Street shops and cafés.

Agent: Nelson Alexander Pty Ltd.

Contact Agent


This site is protected by reCAPTCHA and the Google Privacy Policy and Terms of Service apply.

 
  • 3
  • 1

Property Sold

Sold 18/02/2012 $728,000


Thornbury

Find out more --->