12 Glass Street, North Melbourne VIC 3051
-
3
-
2
North Melbourne hidden gem
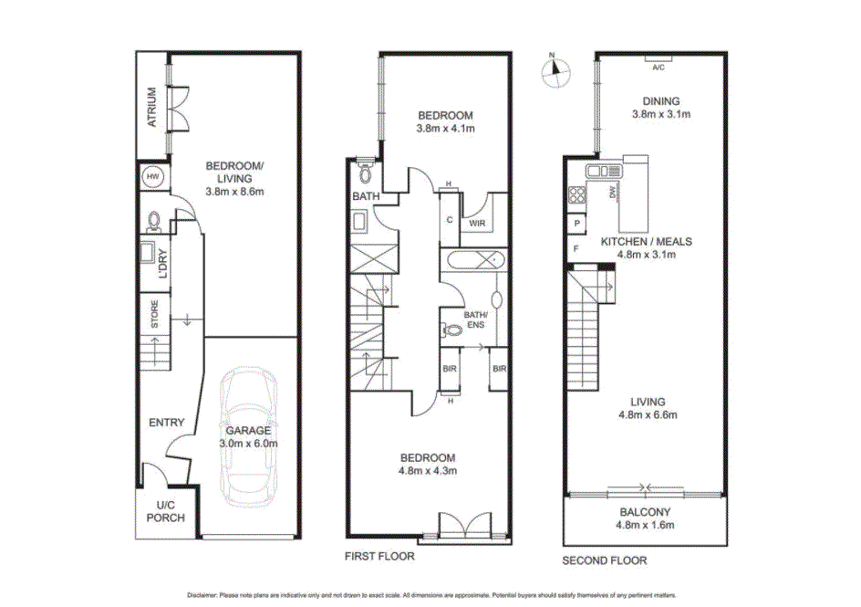
With the CBD at your fingertips, this three-bedroom, two bathroom town home is fresh and spacious. With three functional levels, entry comprising a single garage, large bedroom/second living zone, laundry facilities and light filled courtyard, level up into two double bedrooms with natural light throughout, plentiful space, built and robes and the master with ensuite and walk in robe. Top level incorporates open plan living upon polished floorboards. The kitchen separates generous living and dining zones, the lounge leading to a balcony capturing magnificent glimpses of the city. Features include stone benchtops and an island bench/breakfast bar, stainless-steel appliances making food preparation and entertaining a breeze, split system air conditioning & intercom. Ideally located close to major hospitals, universities, Haileybury College and ideally situated for choice of quality cafes/bars and restaurants.
