116 Barrow Street, Coburg VIC 3058
-
3
-
1
Classic proportions, leafy garden, Cul-de-Sac calm
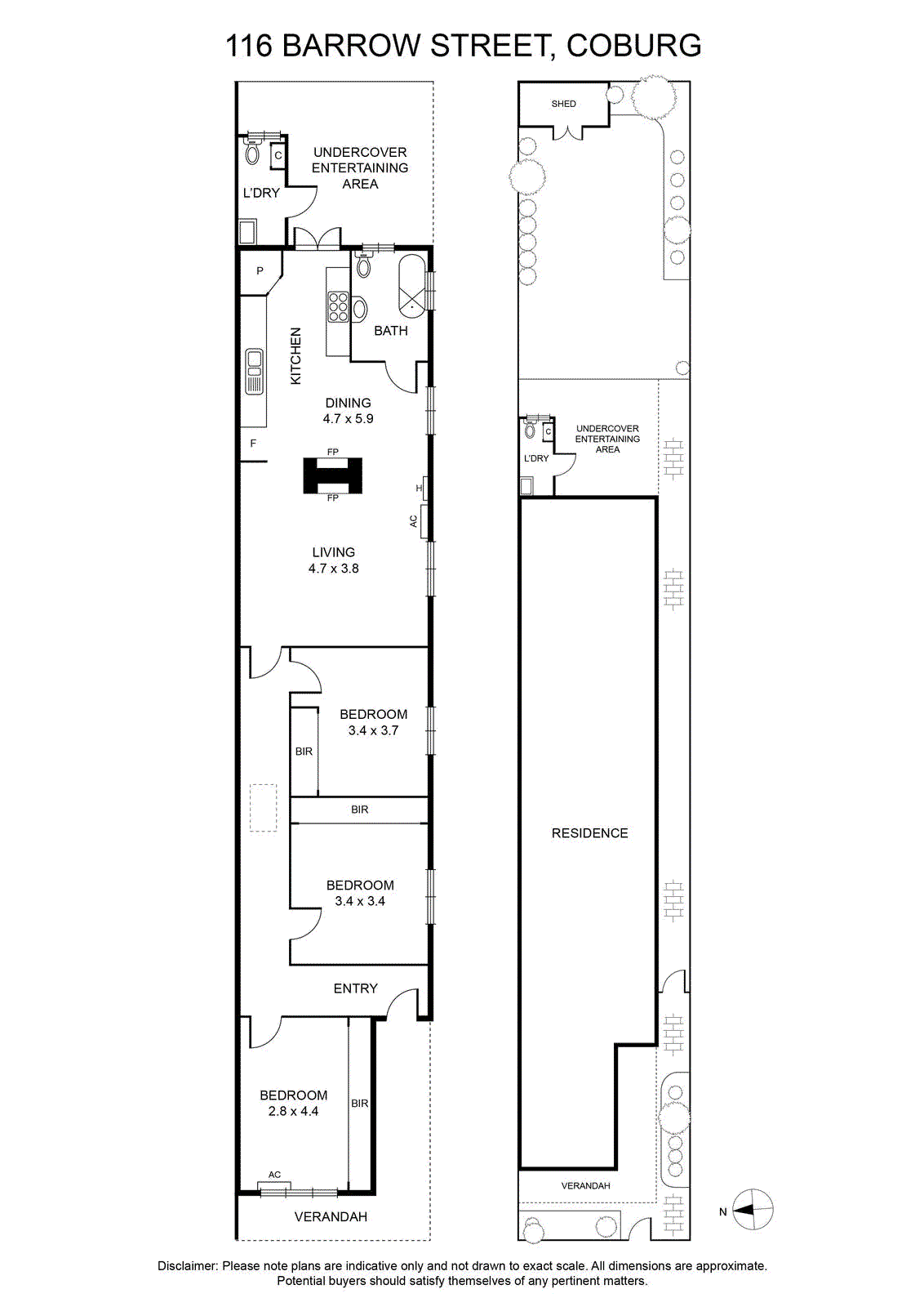
Warm and inviting, the entry leads to three large bedrooms with built-in robes, each enjoying good natural light, before opening to a full-width living and dining room. An original open fireplace sits between the living space and the timber kitchen, which looks out to the covered alfresco area beyond.
The bathroom is spotless, with a shower over a clawfoot bath, and a separate laundry with a second toilet adds everyday practicality. Outside, a surprisingly spacious, established garden offers a quiet, leafy place to unwind. Extras include gas ducted heating, split system heating and cooling, and garden shed.
In a quiet street it is so close to vibrant Sydney Road with its eclectic range of shops and eateries, a choice of trams on Sydney Road or Nicholson Street, Coburg Station, schools, Merri Creek parks and trails and Pentridge Shopping Centre.
Seller Review
Michelle was fantastic to work with throughout the
Review by Abe L
Seller Review
Professional, great knowledge of the local market
Review by Abe L
