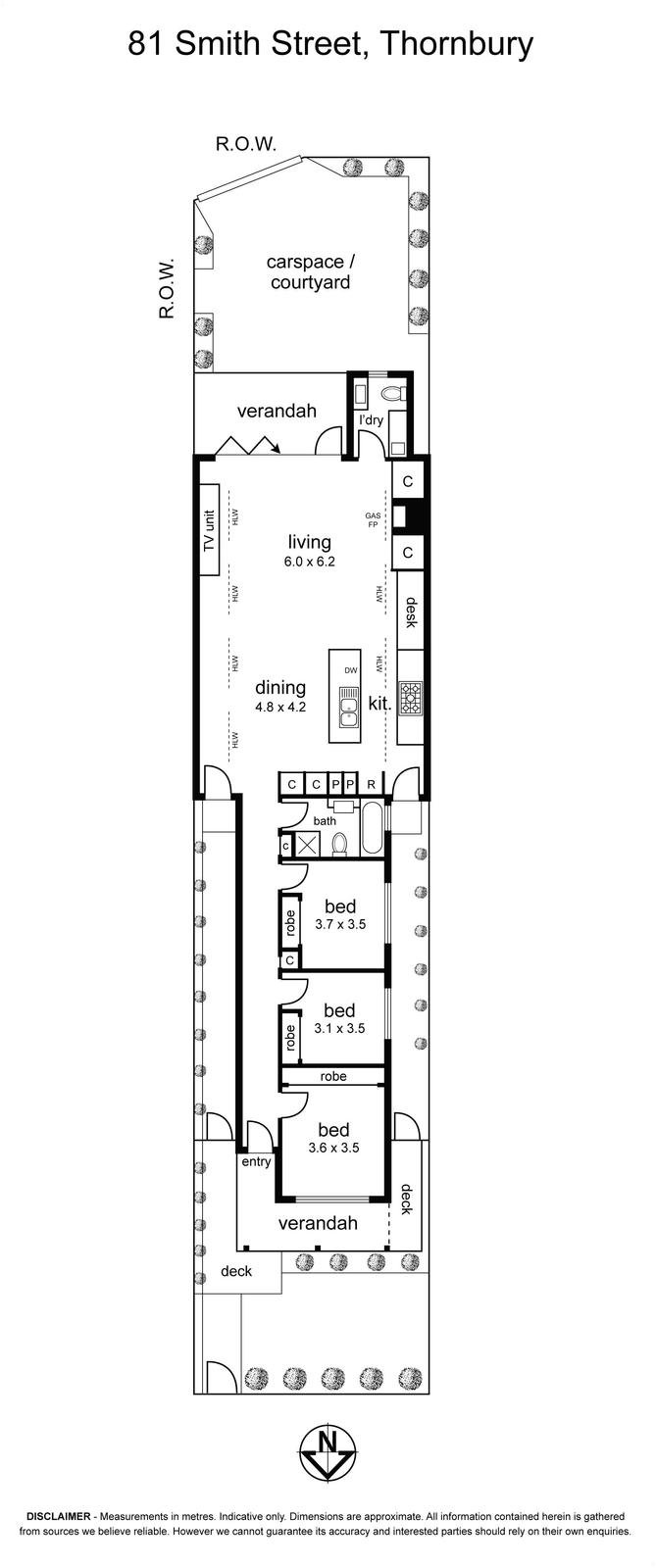
81 Smith Street, Thornbury VIC 3071
-
3
-
1
-
1
Contemporary luxury, perfectly placed
- The expansive, open plan living and dining is certain to leave a lasting impression, enhanced by remarkable 4 metre ceilings, and overwhelmed in natural light from east- and west-facing highlight windows that flank the space. Complete with polished timber flooring, floating entertainment unit, gas log fireplace, and built-in study alcove.
- Constructed for effortless entertaining and timeless in style, the showstopping kitchen centres around a grand, stone-topped island with breakfast bench, and boasts premium appliances and expansive cabinetry.
- The low-maintenance courtyard forms a seamless extension of the interior, joining a covered, decked alfresco area via glass folding doors, and featuring raised planter boxes of mature screening trees and off-street parking via ROW.
- Zoned for privacy at the front of the home, three plush bedrooms each feature built-in robes, plantation shutters, and original period features evident in the high skirting, decorative moulding, and elaborate ceiling roses.
- The sleek central bathroom is well-appointed with a generous shower, separate bathtub, and stone-topped vanity with ample storage.
- Extra features include a separate laundry/powder room, ducted heating, ducted refrigerated cooling, and sizeable storage solutions.
- Unparalleled for easy living, find a wealth of local dining on nearby High Street, Northcote Public Golf Course and Henderson Park among many other green spaces, and St Georges Road tram and Thornbury train station within walking distance.
- Zoned for Thornbury Primary School and Northcote High School.
Owners Notes
What we love about this home:
From the moment we first stepped into 81 Smith Street as a young couple, we knew it was where we wanted to build our life together. Over the years, this home has become far more than just a place to live it has been the backdrop to raising our children, celebrating birthdays, hosting family gatherings, and creating the everyday moments that define who we are.
Every renovation we undertook was made with intention: to create a warmer, more functional, and more beautiful environment for our growing family. The high set windows and soaring ceilings have filled our mornings with soft natural light, while the timber floors have carried the sound of little feet over the years. The gas fireplace was at the heart of countless winter movie nights, and the built-in study nook has supported everything from homework sessions to late night planning.
The kitchen quickly became our family hub. Whether sharing breakfast around the stone island, spreading out school projects, or preparing meals together, it has been the centre of our daily life. Opening the doors to the courtyard on warm days created a seamless indoor–outdoor flow, giving the children extra room to play while we enjoyed entertaining friends and family. It’s a space that has always felt generous, comfortable, and full of life.
Each bedroom has held a chapter of our family’s story from nurseries to children’s rooms to guest spaces for visiting relatives. The home’s original period features give it charm and character, while thoughtful modern upgrades ensure effortless everyday living. One of the property’s rare advantages is its ROW vehicle access an uncommon and valuable benefit on Smith Street.
What we love about this suburb:
Thornbury offers the perfect blend of vibrant inner north living and community focused comfort. With cafés, restaurants, shops, parks, and public transport all within walking distance, life here is easy and well connected. Access to Northcote Public Golf Course, Henderson Park, trams, and Thornbury train station makes commuting simple, while being just 7km from the CBD provides proximity without sacrificing neighbourhood charm.
Long standing neighbours many here for over 40 years create a trusted, supportive community that looks out for one another. The highly regarded school zones for Thornbury Primary School and Northcote High School further enhance the suburb’s appeal.
Why are we selling:
Our circumstances have evolved, and we believe it’s the right moment to pass this wonderful home to its next owner someone who will appreciate its carefully curated spaces, premium finishes, and exceptional lifestyle as much as we have.
