25 Webb Street, Coburg VIC 3058
-
4
-
2
-
3
Fabulous fusion of classic and contemporary
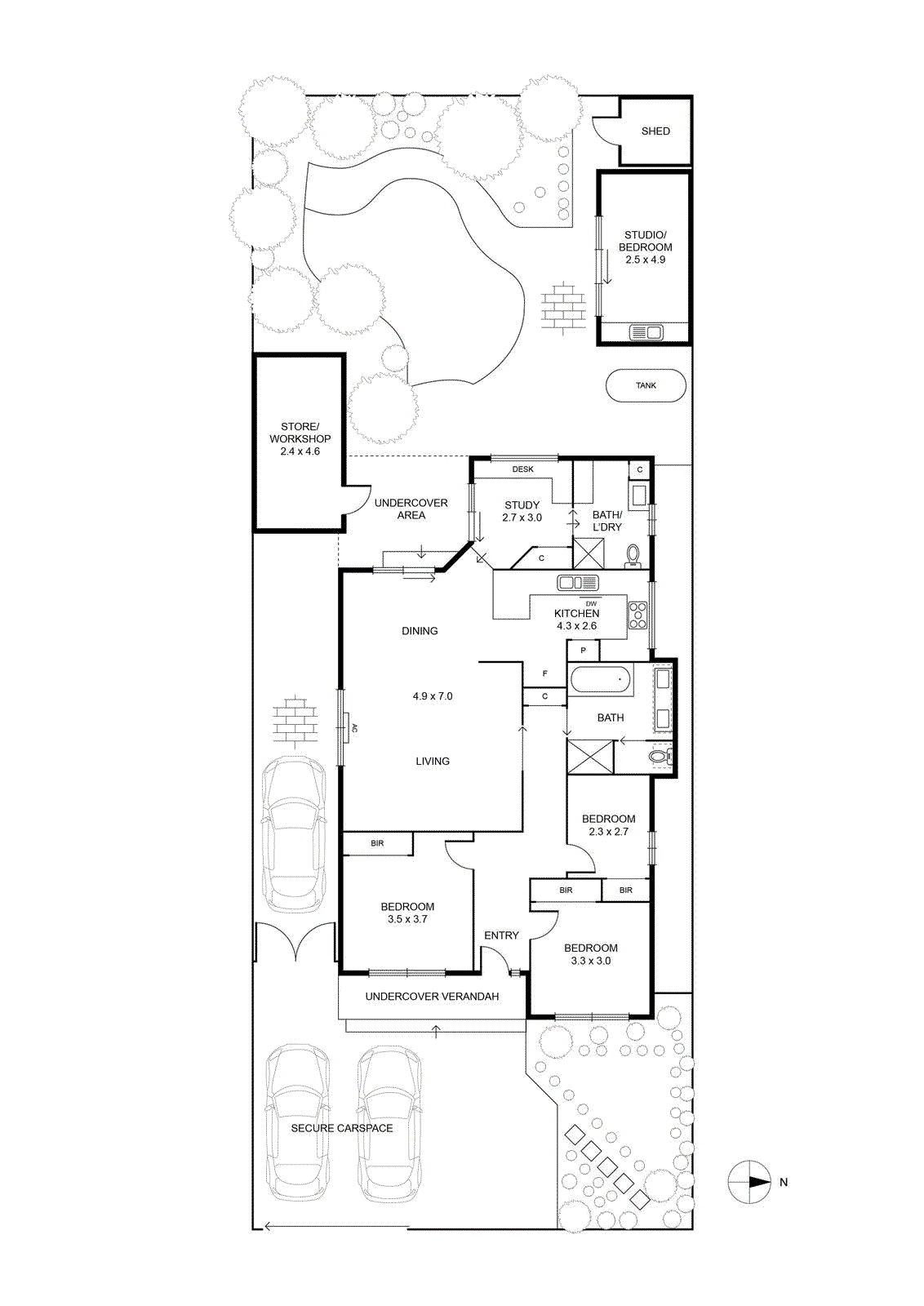
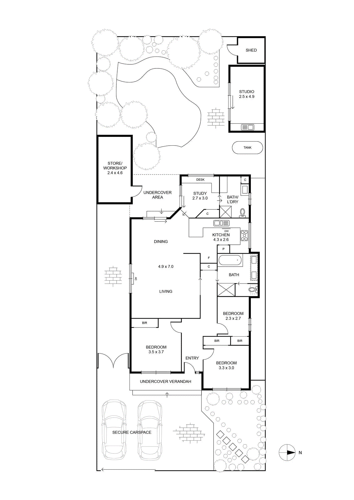
The picket-fenced garden and gorgeous facade make way for a previously expanded interior showcasing three bedrooms (large main) with built-in robes and brand new carpets all serviced by a stylish double-vanity bathroom and second bathroom/laundry.
Add to this a dedicated study zone with built-in workstation and light-filled open living/dining area complemented by a stone-top kitchen with breakfast bench, soft-close cabinetry, 900mm cooking appliances and Bosch dishwasher.
Additional features include ducted heating and split-system air conditioning for year-round comfort, along with high ceilings, engineered timber floors, freshly painted, plantation shutters (all bedrooms) and the energy efficiency of a solar power system.
Step outside to discover a sunny backyard including undercover patio, extensive brick paving, large storeroom and the added practicality of a studio/guest room with kitchenette, plus three-car off-street parking via the remote-control front gate.
A short stroll to Ohea’s Bakery along with local buses, Harmony Park and Coburg North Primary School, it’s also close to Coburg North Village Shopping Centre and Lincoln Mills Homemaker Centre, as well as easy access to Coburg Station, walking distance to Batman Station and Sydney Road trams.
Seller Review
Josh was fabulous. We were overseas at the time
Review by Karen D

