91 Barry Street, Reservoir VIC 3073
-
2
-
1
-
2
Terrific potential in a prime location
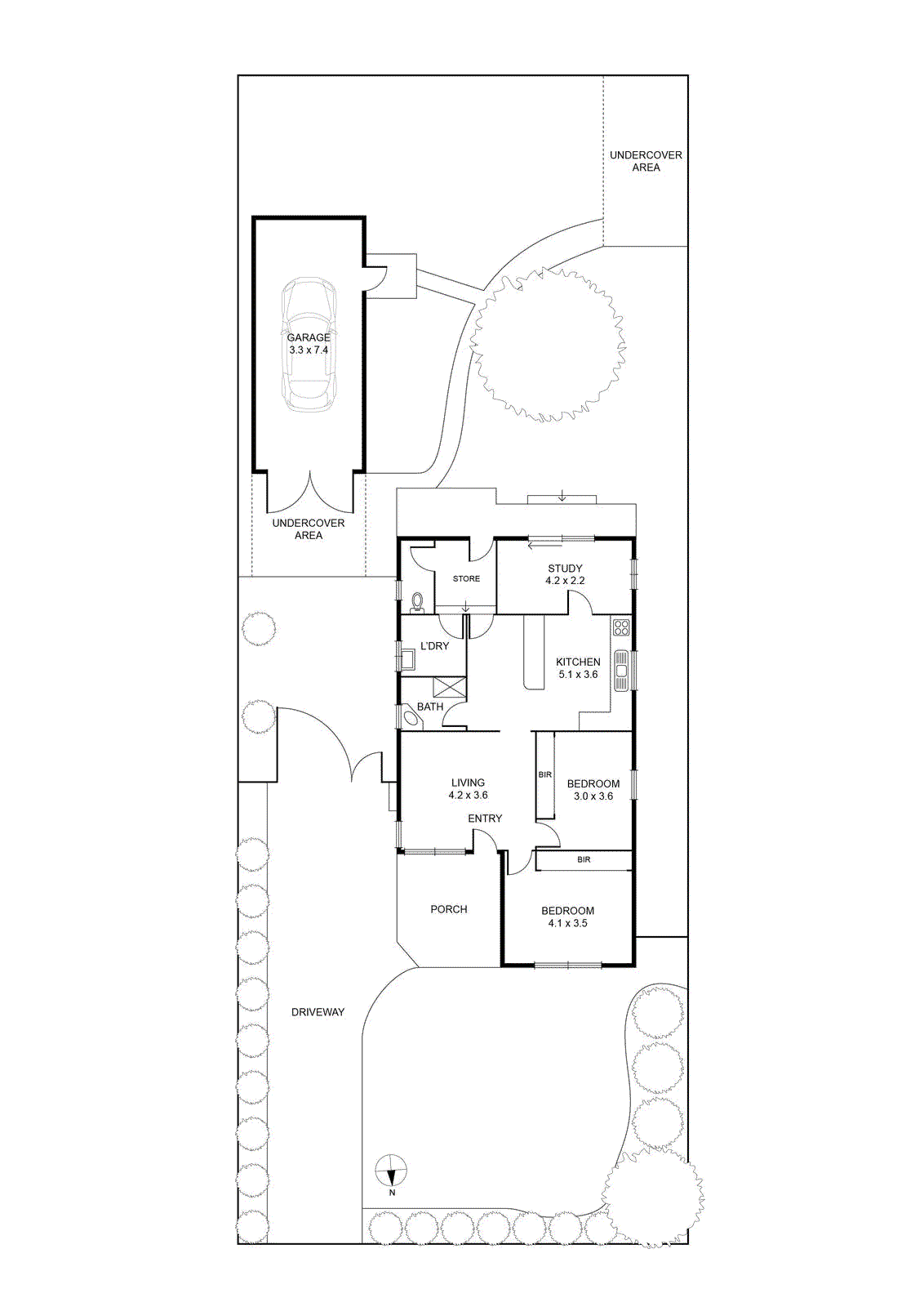
Past its prime yet brimming with potential, the home currently comprises two bedrooms (large main) both with built-in robes, as well as a neat central bathroom and separate WC.
Add to this a front living room, functional kitchen/meals area with stainless-steel cooking appliances and separate study at the rear.
Other features include gas heating, ducted evaporative cooling and full-size laundry, plus a generous backyard complete with lock-up garage via the gated side driveway.
Moments from Oreganos Cafe along with local buses, Edgars Creek Wetlands and the open spaces of Edwardes Lake Park, it’s also close to Ruthven Station, popular schools and Reservoir’s thriving retail precinct.
