15 Rowan Drive, Kealba VIC 3021
-
4
-
2
-
2
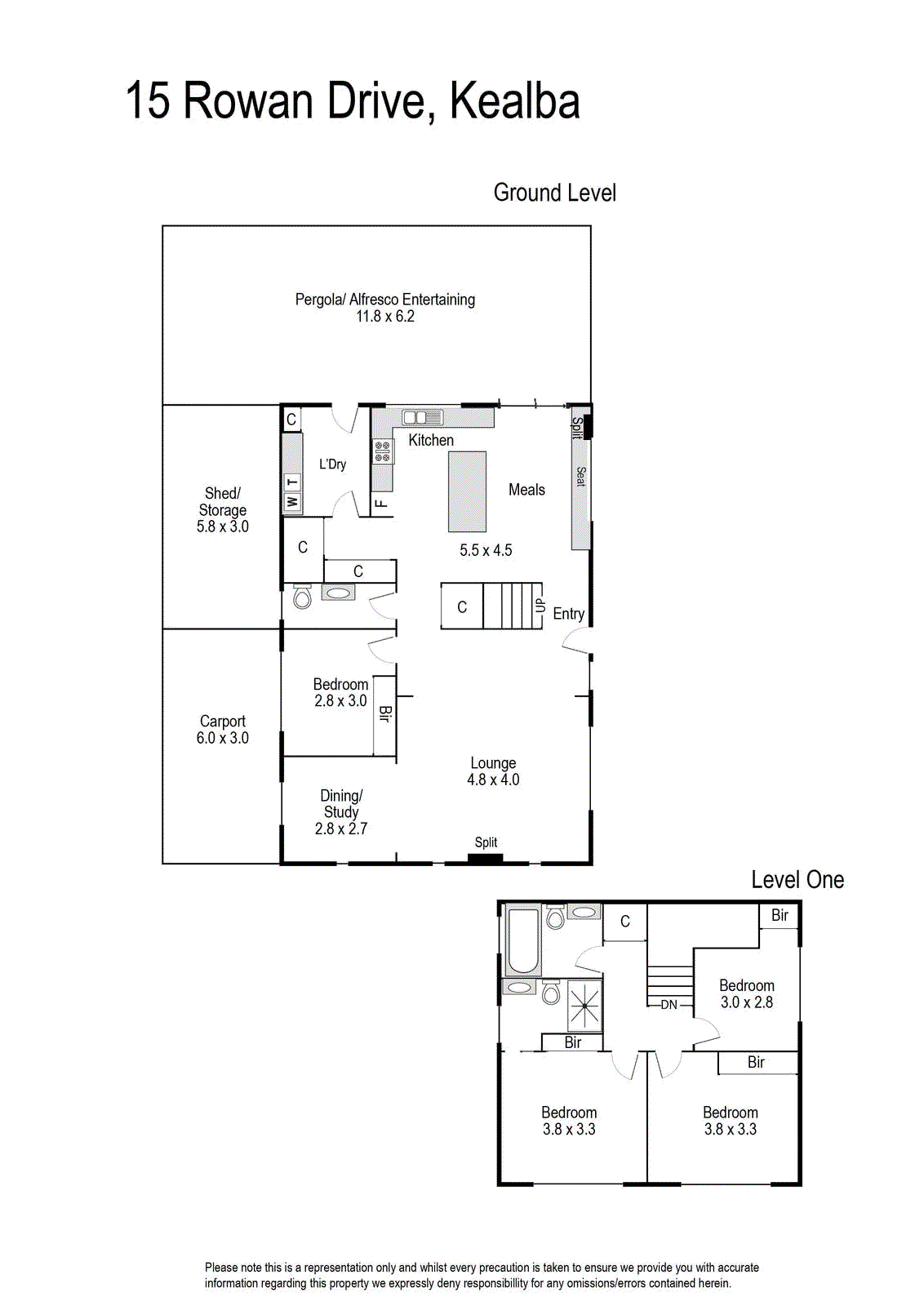
Reimagined for perfect modern living
Every room filled with natural light, the home’s welcoming interior comprises four bedrooms (large main) all with built-in robes, as well as a stylish ensuite, central bathroom and additional powder room (3rd WC).
A separate study/retreat adds to the appeal along with a spacious front living room and open dining area to the rear serviced by a contemporary timber-top kitchen with soft-close drawers, dishwasher and Asko cooking appliances.
Other fine features of the home include ducted heating/refrigerated cooling, keyless entry and stylish micro-cement floors, along with a family-sized laundry and excellent storage options throughout.
Completing the picture is an enormous alfresco area ideal for grand-scale entertaining and sizeable backyard for the kids to enjoy, plus a large workshop/storeroom and secure carport via the remote-control gated driveway.
Bus stop around the corner along with Kealba Kindergarten and the open spaces of Brimbank Park walking distance away, it’s also close to local schools, Keilor Central Shopping Centre and Brimbank Wellness & Aquatic Centre, as well as easy access to the Calder Freeway.
