Before the resolutions fade… Discover what your home is worth with a complimentary Nelson Alexander appraisal. Book now.

Menu

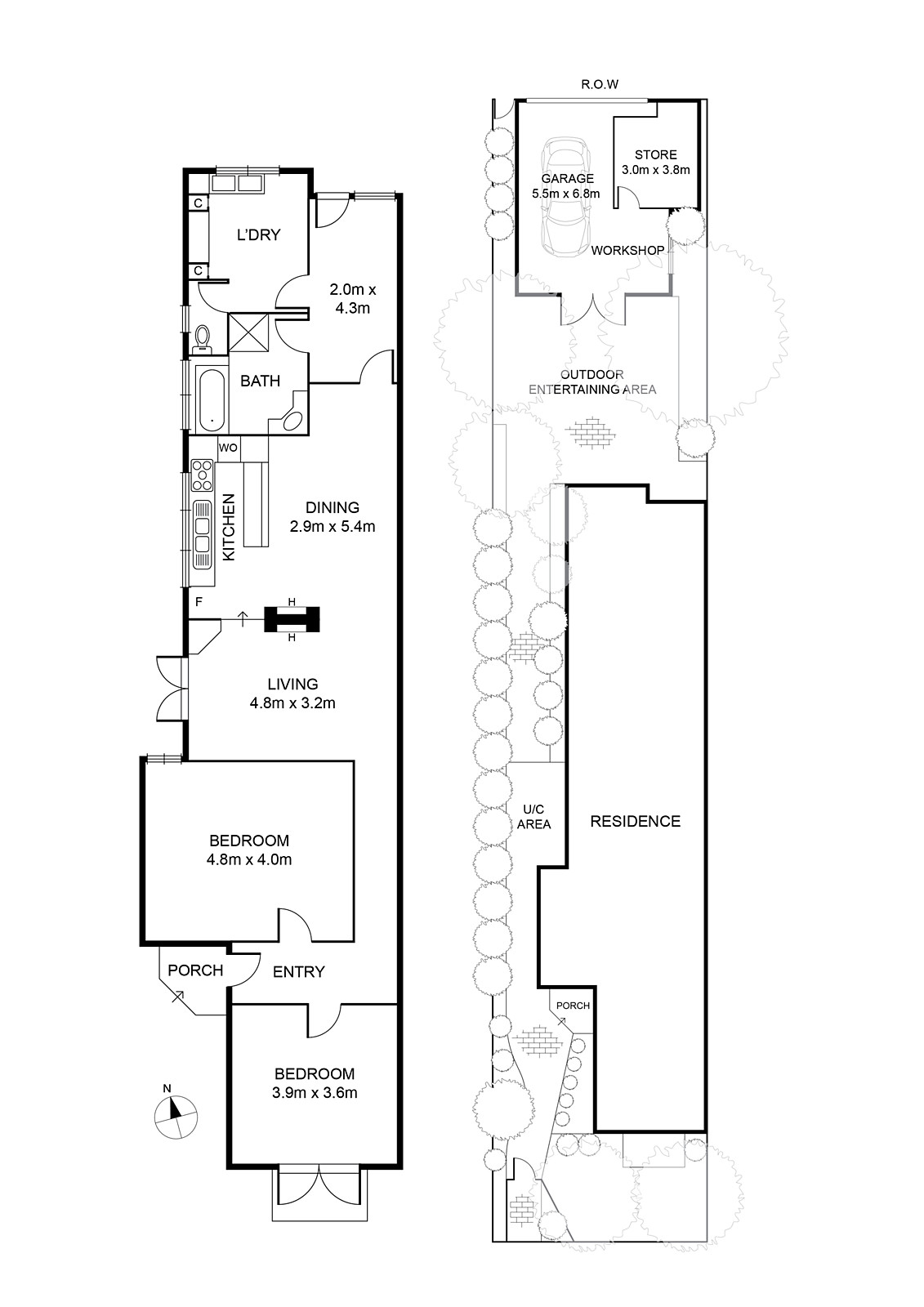
78 Walker Street, Clifton Hill VIC 3068

  • 2
  • 1
  • 1

Prime Position with Perfect Potential!

In a truly outstanding city-fringe location virtually surrounded by parkland, this neat single-front period home occupies an oversized block of land (approx 307sqm) providing a world of opportunities to renovate, extend or possibly develop with approved planning permit for 2 townhouses already in place. First time offered in over 40 years, the home's current floorplan includes two large bedrooms, bathroom and separate WC, wide central lounge through to the kitchen and adjoining meals area. Step outside to discover a substantial north-facing backyard with extensive brick paving and garage/workshop via excellent ROW. Moments from Quarries Park and Merri Creek trails, it's also walking distance to Spensley Street Primary School, local cafes and village shops, Clifton Hill Station as well as easy freeway access. Location and potential - this is the one!

Contact Agent


This site is protected by reCAPTCHA and the Google Privacy Policy and Terms of Service apply.

 
  • 2
  • 1
  • 1

Property Sold

Sold 11/11/2017 $1,720,000


Clifton Hill

Find out more --->