19 Gibdon Street, Richmond VIC 3121
-
3
-
2
Designer Style with Lifestyle Focus
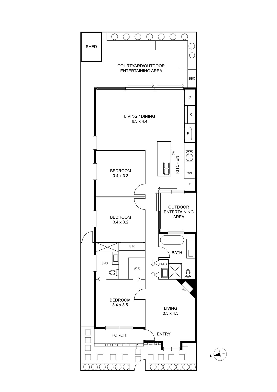
The serene, impressive interior offers formal living, three double bedrooms including main with custom built walk-in robe and ensuite and luxurious central bathroom with freestanding bath. An expansive extension to the rear features open plan kitchen, dining and living, with built in ceiling speakers, opening to the east facing, paved alfresco area and garden with built in barbecue. The bespoke kitchen includes stone bench tops, large island bench, ample storage, quality Miele appliances including 900mm induction stovetop & dual ovens and accesses the private internal decked courtyard. Further highlights include heating and cooling throughout, engineered timber floors, European laundry, shed, designer light fittings, plantation shutters and flowing floor length sheers.
An excellent location just a short walk to Swan Street, trams, bars, restaurants and cafes, Burnley Station, and moments further to Bridge Road, Yarra River parks and trails, the MCG and the CBD. A unique urban residence in a class of its own.
19 Gibdon Street, Burnley
