46 Francis Street, Ascot Vale VIC 3032
-
2
-
1
Exceptional Potential High on the Hill
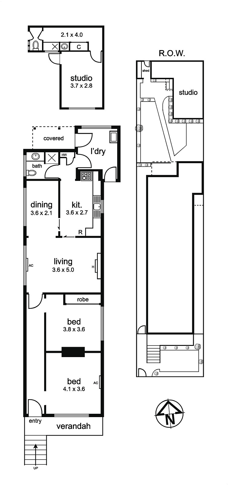
First time offered for sale in 45 years, the home's current floorplan comprises a side hallway accessing two large front bedrooms, leading through to the central lounge and adjoining dining room. Add to this a neat bathroom, functional kitchen and internal laundry, as well as two reverse-cycle split-system air conditioners. Highlighting the property's potential is the sunny north-facing backyard complete with two-room studio, direct access to the rear ROW and plenty of room for future expansion.
Walking distance to Rothwell Park and Ascot Vale Station (four stops to the CBD) along with Union Road shops, cafes and trams at the end of the street, it's also close to popular schools and major shopping centres.
