81 Victoria Street, Brunswick East VIC 3057
-
4
-
3
-
2
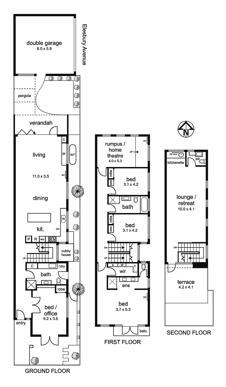
Luxurious Living on Fleming Park
The bespoke kitchen, adorned with top-of-the-line Miele appliances and solid timber benchtops, seamlessly integrates with the expansive ground floor living and dining area. Open the bifold doors to reveal a north-facing entertaining courtyard and native garden, perfect for hosting gatherings. A well-appointed home cinema or second TV room, a spacious second living room or retreat with a convenient kitchenette and powder room, and a wide roof terrace further enhance the living spaces. Two additional bathrooms, one with a spa bath and a well-equipped laundry cater to practical needs.
This exceptional home boasts a double garage with easy laneway access, showcasing polished concrete and recycled Baltic floors, double glazing, abundant storage options, hydronic heating, split-system air conditioning, an audio system, comprehensive cabling, an alarm system, a central vacuum unit, and a 2000- litre grey water system.
Conveniently situated within walking distance of Lygon Street and Nicholson Street trams, trendy cafes, renowned restaurants, Merri Creek trails, and the esteemed CERES environmental park, this property also falls within the sought-after school zones of Brunswick East Primary School and Northcote High School.
Seller Review
The team gave us great insights, managing our
Review by Peter W
