3/8 View Street, Pascoe Vale VIC 3044
-
2
-
1
-
1
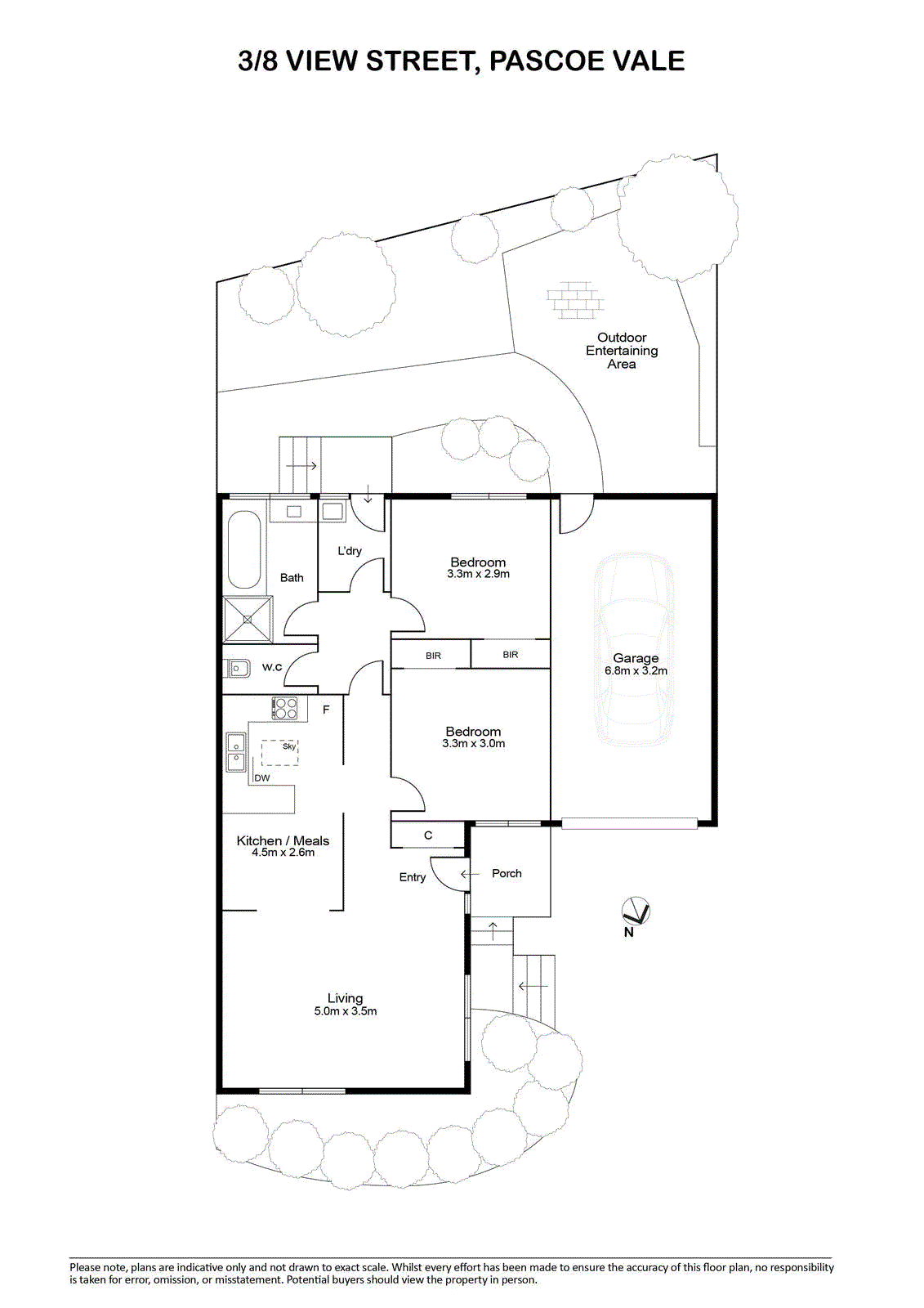
Spacious, serene and perfectly placed
Welcomed by solid hardwood floors and a profusion of natural light, the home’s impeccable interior comprises two bedrooms (larger main) with mirrored robes both complemented by a spotless central bathroom and separate WC.
Adding to the allure is a versatile living room flowing effortlessly through to the neat kitchen adorned in natural light from the well position skylight, complete with dishwasher and adjoining meals area.
Other highlights of the home include a full-size laundry, along with reverse-cycle split-system air conditioner, ducted evaporative cooling and additional panel heaters.
Step outside to find a wonderfully rear courtyard with brick-paved entertaining area, high fences for added privacy, extensive greenery and garden surrounds, plus rear access into the remote-control garage.
A short stroll to Austin Crescent Reserve along with Pascoe Vale Station, local cafes and shops, it’s also close to popular schools (zoned to Strathmore SC) and kinder/childcare providers, as well as easy access to the Moonee Ponds Creek Trail and Citylink.
Seller Review
Highly recommend Matt - A good communicator who
Review by Em G
