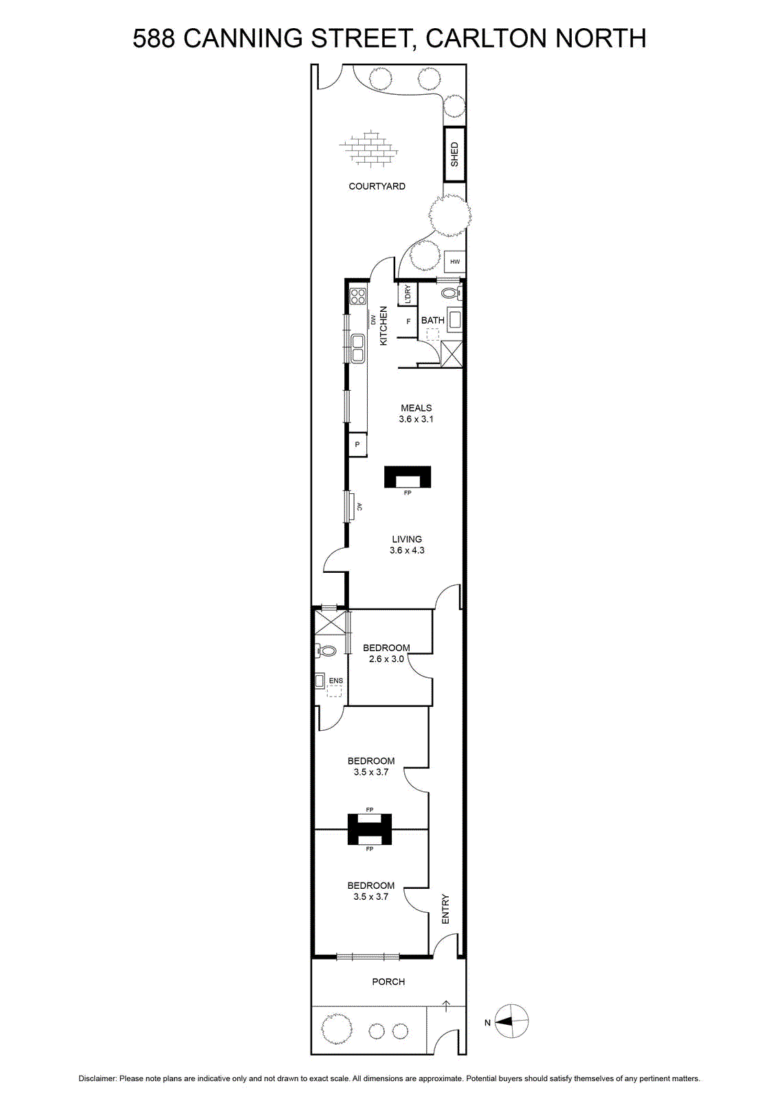
588 Canning Street, Carlton North VIC 3054
-
3
-
2
A Carlton classic
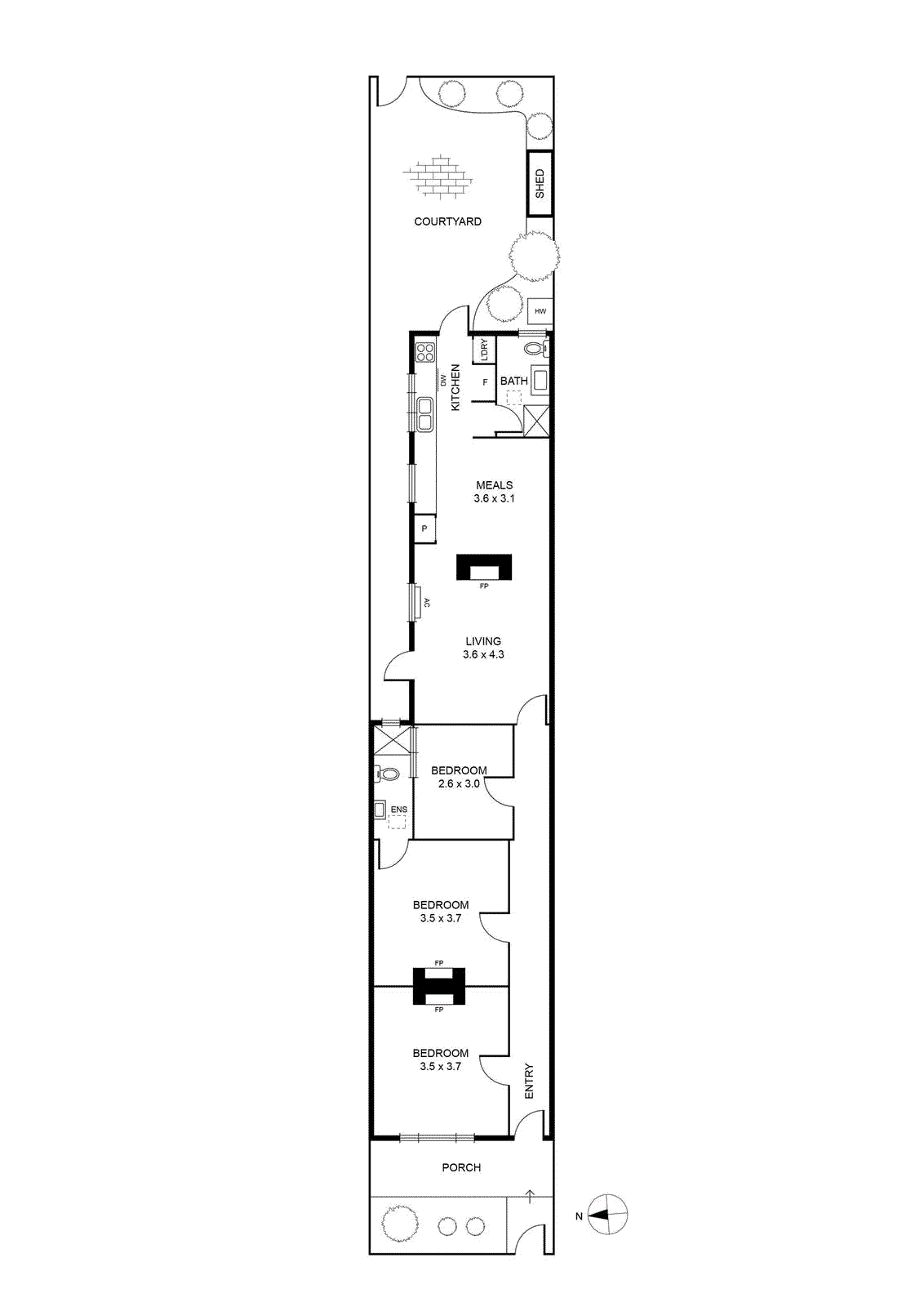
With potential to enhance and transform into something special, the home is very comfortable and retains much of its endearing character and charm. From the exposed brick walls to elegant period features, to a cosy brick fireplace delineating it’s central living and dining zone, it offers refurbished wet areas with its kitchen and bathrooms (Ensuite to Main) having previously been modernised.
Two double bedrooms are complemented by a smaller 3rd bedroom, ideal as an office, nursery room or future central bathroom, this extra room is an invaluable asset and will provide a myriad of future options. Rear pedestrian ROW delivers current convenience and the possibility of future car accommodation.
The location is superb with many amenities on your doorstep supporting your asset and ensuring living here is a delight, this quintessential inner-city terrace is ready to move into and enjoy. Alternatively, enhance, open up and extend the floorplan to create a generous family home or your something special.
