32 Newry Street, Fitzroy North VIC 3068
-
2
-
1
Fabulous fusion of old and Newry
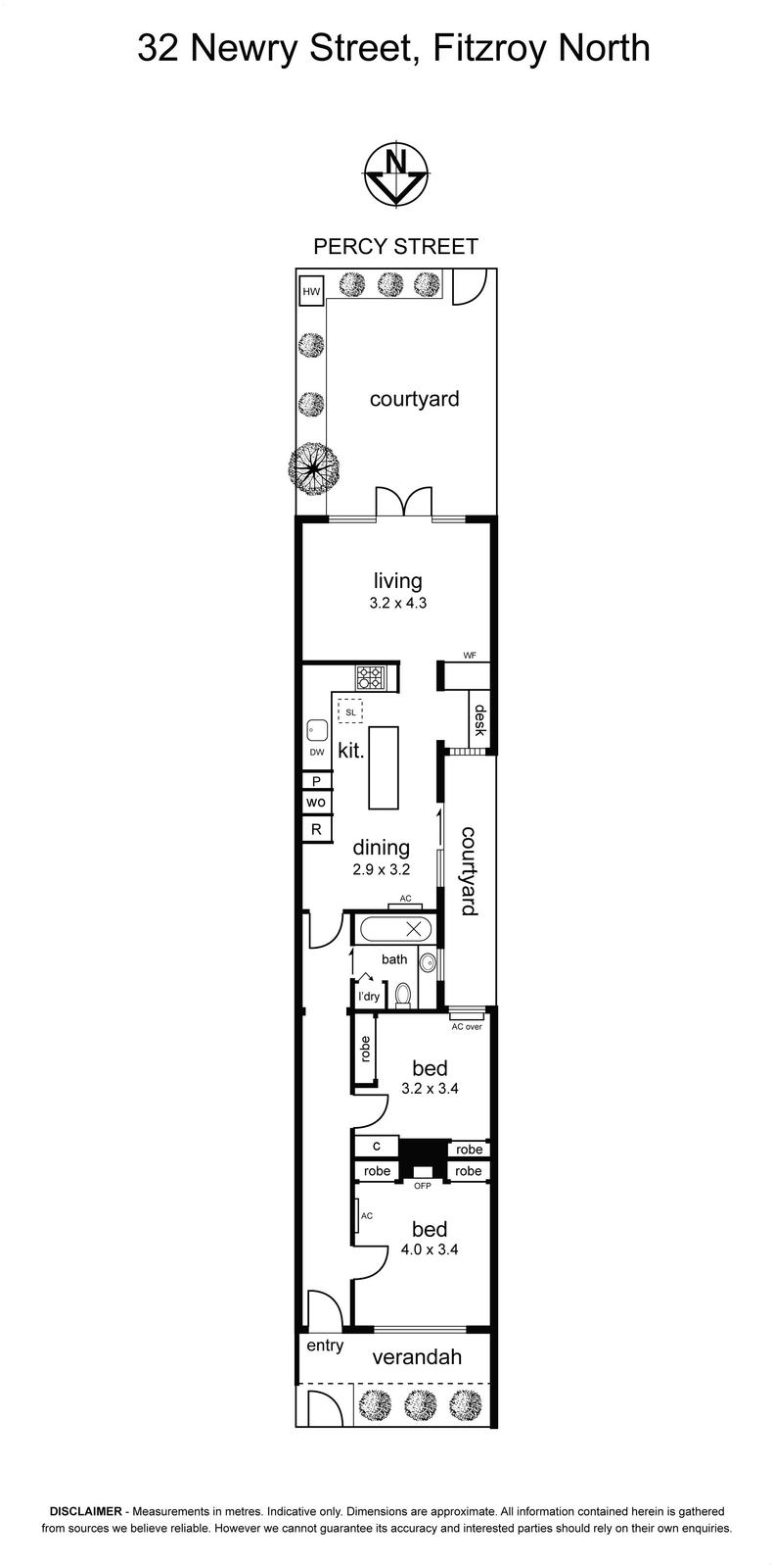
The wrought-iron fence and Hawthorn-brick facade make way for an impeccable interior showcasing two bedrooms with built-in robes both sharing a sleek fully tiled bathroom with shower/tub combo and concealed laundry facilities.
Flooded with natural light, the open-design living and dining areas are complemented by a modern stone-top kitchen that comes complete with quality cooking appliances, double dishwasher and integrated fridge/freezer.
Other stand-outs include a dedicated study alcove with built-in workstation, wine fridge, splitsystem heating/cooling (x3), high ceilings and engineered timber floors, plus a private backyard garden with extensive brick paving and direct access to Percy Street behind.
Footsteps to Edinburgh Gardens along with popular cafes and city-bound trams, it’s also walking distance to Fitzroy Swimming Pool and the buzz of Brunswick Street, as well as easy access to local schools and the Inner-Circle Rail Trail.
