2/56 Snell Grove, Oak Park VIC 3046
-
3
-
2
-
2
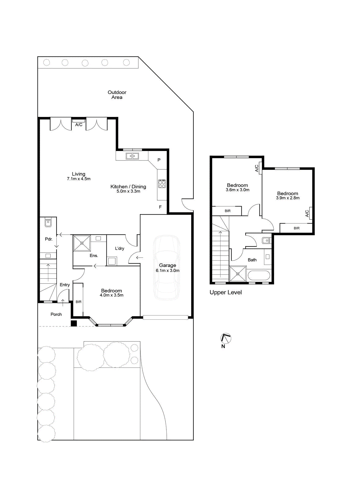
Effortless living with light and style
Impeccably presented, the home’s light-filled interior comprises three generous bedrooms with mirrored robes, as well as a private master ensuite, main central bathroom and separate powder room.
Surprisingly spacious and versatile, the open-plan living/dining area is further enhanced by an adjoining kitchen with stainless-steel cooking appliances and ample cupboard space.
Other stand-outs include ducted heating and split-system air conditioning (Mitsubishi Heavy Industries), along with engineered timber floors, fresh carpets and full-size laundry.
Dual double doors reveal a wide north-facing courtyard with extensive paving and high fences for privacy, plus a remote-control garage with internal entry and second driveway parking space.
A short stroll Snell Grove shops, Oak Park Station and the bus stop on Rhodes Parade, it’s also close to popular Pascoe Street eateries, local parks, schools and kinder/childcare providers, as well as easy access to Citylink.
