59 Stewart Street, Brunswick VIC 3056
-
4
-
1
-
1
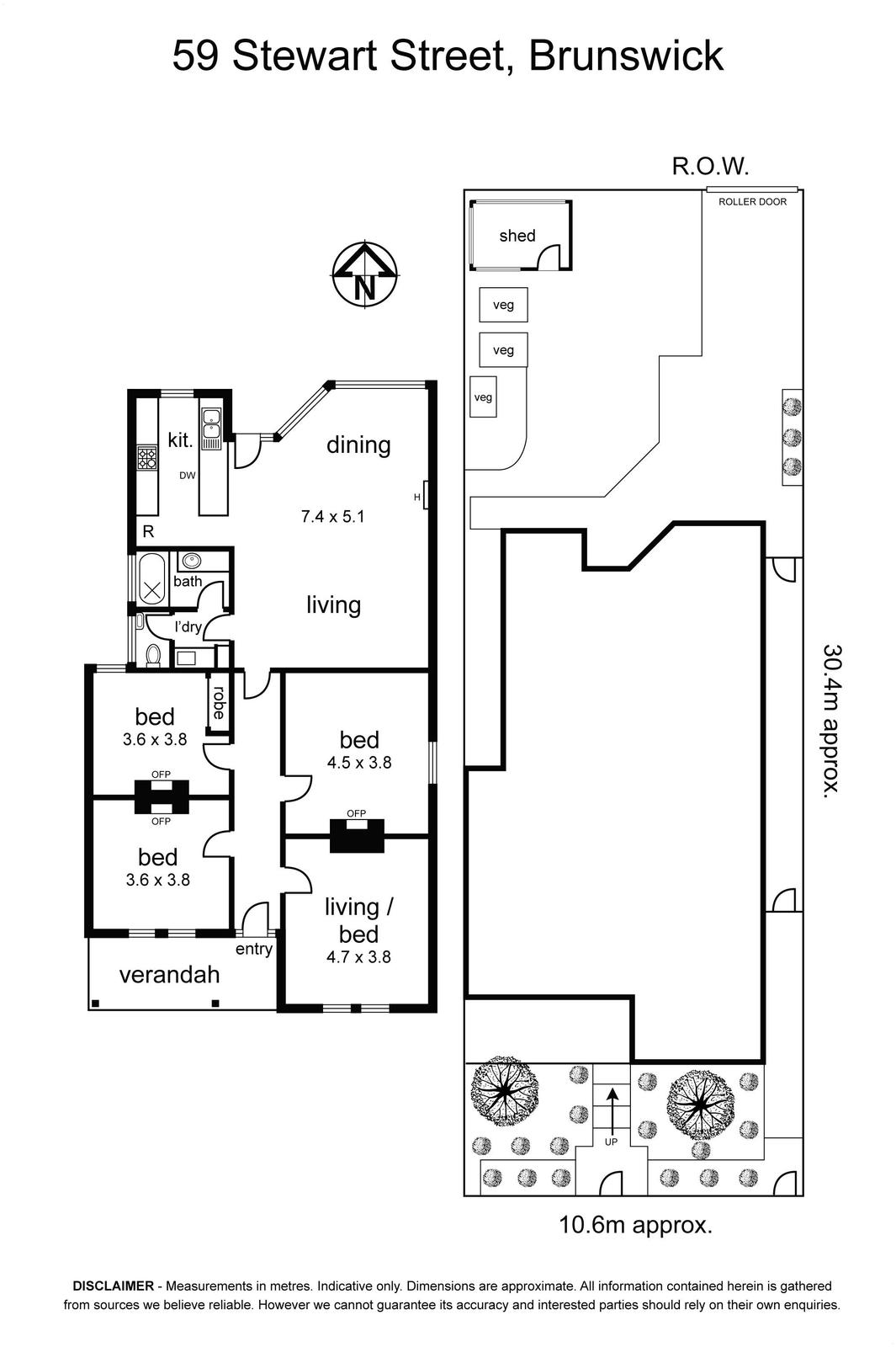
A beautifully balanced Edwardian with light, space and North aspect
Beyond the elegant façade, a welcoming interior unfolds to three generous bedrooms (main with robes), all serviced by a stylish central bathroom and separate powder room.
A flexible front lounge or fourth bedroom is complemented by a light-filled open-plan living and dining zone at the rear, anchored by a stone-topped kitchen with Smeg cooking appliances and Bosch dishwasher.
Comfort and character come together with gas heating, internal laundry, high ceilings and solid timber floors, while outside a substantial north-facing backyard offers excellent space to relax or entertain, plus off-street parking via the rear ROW.
Just a short walk to the cafes, bars and shops of Lygon Street and Sydney Road, it’s also brilliantly positioned for trams, Anstey Station, local schools and major supermarkets.
