The numbers are in. Discover how the market is performing in your area with the latest Nelson Alexander Suburb Report.

Menu

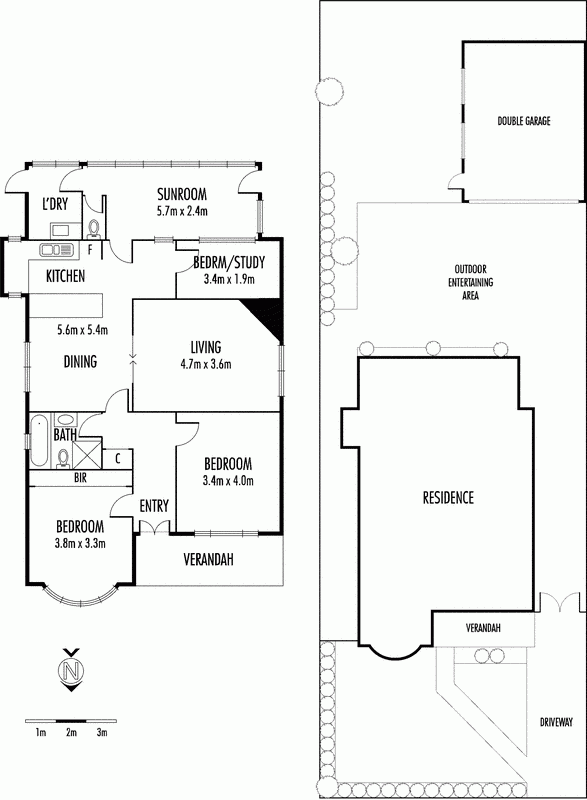
27 McGregor Avenue, BRUNSWICK WEST VIC 3055

  • 3
  • 1
  • 4

500sqm! GREAT VALUE HERE!

With an attractive facade and an expansive block of land, this well presented home is situated in a quiet and convenient pocket, the home's immediately comfortable interior comprises two double bedrooms (master with BIRs) and study/third bedroom, updated central bathroom, separate loungeroom through to the dining area and adjoining timber-cabinet kitchen. Highlights include ducted heating, ornate ceilings and polished timber floors, enclosed patio to laundry/second toilet, plus an expansive backyard complete with 4-car brick garage via gated side driveway. Perfectly positioned, it's close to local parks and schools, Melville Road shops and trams, as well as easy access to Citylink. Land size: 500sqm (approx) Agent: Nelson Alexander Pty Ltd

Contact Agent


This site is protected by reCAPTCHA and the Google Privacy Policy and Terms of Service apply.

 
  • 3
  • 1
  • 4

Property Sold

Sold 29/11/2014 $740,000


Brunswick West

Find out more --->