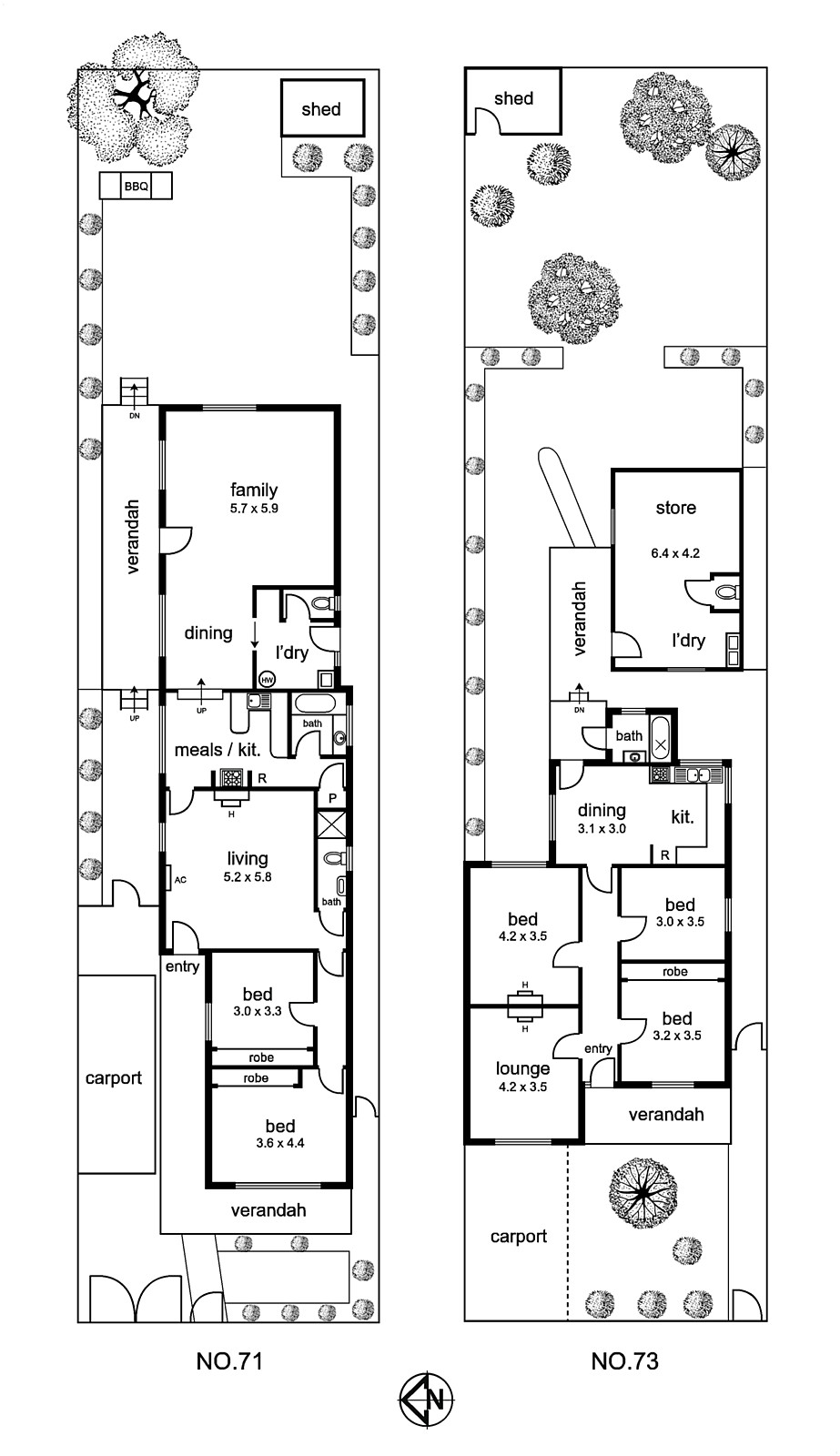
71 & 73 Station Street, Fairfield VIC 3078
-
5
-
2
-
3
TWO HOMES - ONE INCREDIBLE OPPORTUNITY!
In conjunction with PNJ Partners. Thomas Pateras. Phone 0413 909 017 or 9489 4944. Email: pnjpartners@bigpond.com
