Before the resolutions fade… Discover what your home is worth with a complimentary Nelson Alexander appraisal. Book now.

Menu

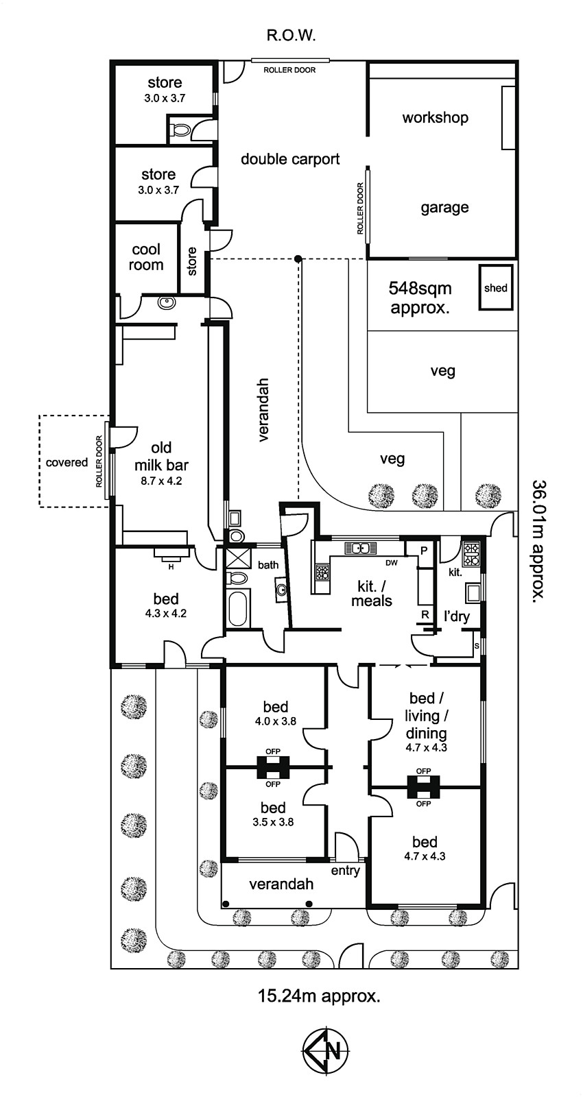
558 Rae Street, Fitzroy North VIC 3068

  • 4
  • 1
  • 2

The Milk Bar House: a landmark with an outstanding future

Generations of North Fitzroy kids will remember the Clauscen Street Milk Bar and its 'big house'! Held by the same family for 60 years, the handsome block-fronted Victorian residence and former dairy and shop are ready to welcome new owners. At the northern end of Rae Street, close to schools, St Georges Road cafes and CBD transport, the vast block (548m2 approx) with 2 street frontages offers exciting potential for subdivision or the creation of a wonderful new residence (STCA) combining heritage character with contemporary flair. In sound liveable condition, the home opens to a grand pillared hallway leading to three double bedrooms and a formal living/dining room, all immaculately presented, with open fireplaces, cornice detail and new carpets; set to the rear are a large retro kitchen/meals area, a fourth bedroom/family room with own street entry and gas fire, and a functional bathroom. The milkbar, intact with its original fittings, has potential for conversion into a studio/home office or integration with the residence. A wide right-of-way to the deep rear garden provides access to a double garage and original outbuildings. A unique home in a premier CBD-edge position! Nelson Alexander Pty Ltd

Contact Agent


This site is protected by reCAPTCHA and the Google Privacy Policy and Terms of Service apply.

 
  • 4
  • 1
  • 2

Property Sold

Sold 28/10/2017 Undisclosed


Fitzroy North

Find out more --->