42 Barry Street, Northcote VIC 3070
-
3
-
1
-
2
"Brookville" Classic Period Appeal
Please contact us via email or phone to speak about your options to inspect this property. Thank you
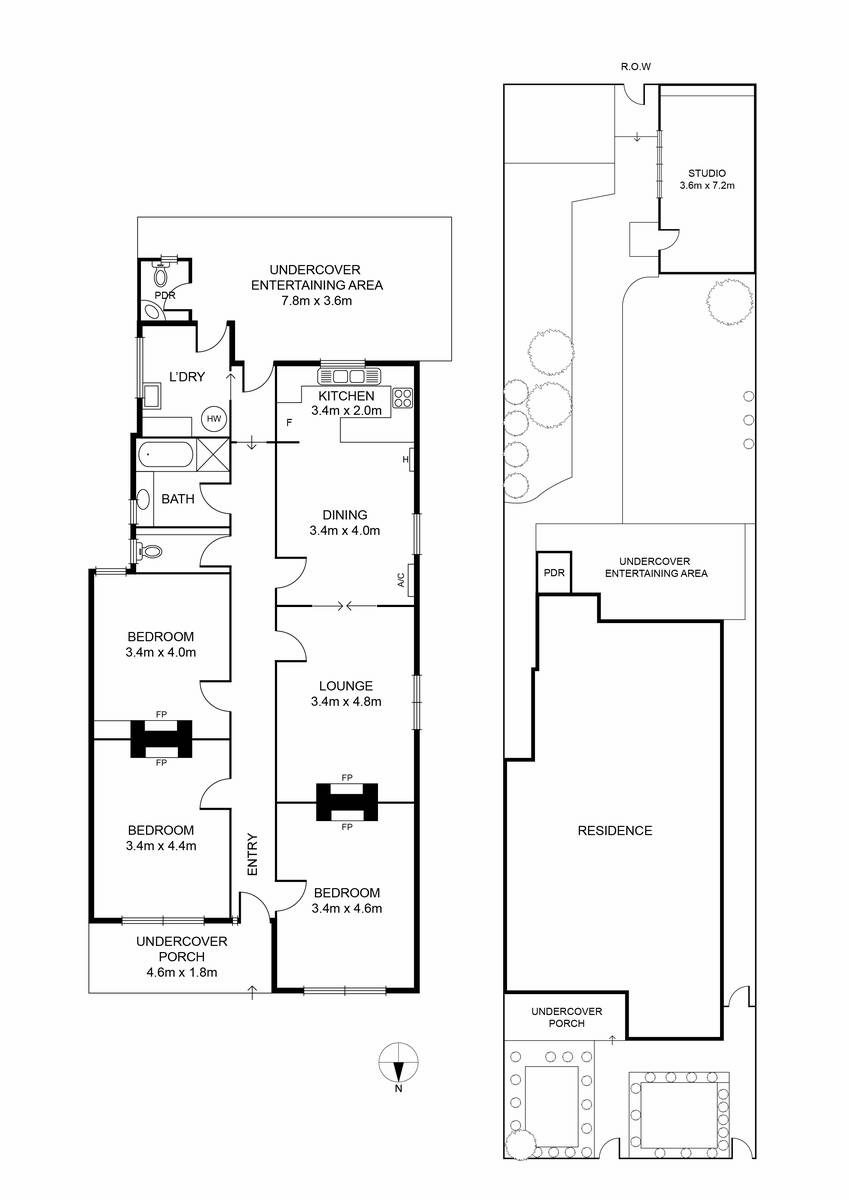
Capturing the gorgeous charm of its period beginnings, "Brookville" is a classic double-fronted Edwardian on a large block, with simply stunning potential for renovation, extension or redevelopment.
A first class Westgarth location - just moments to High Street cafes and shopping, choice of two train stations, Merri or Westgarth, choice of two tram lines, High Street or St Georges Road and the beautiful Merri Creek Trail is just down the street. Plus, it's within the highly sought-after Northcote High School zone.
Step inside to discover a wide hallway, high ceilings, decorative arches, ceiling roses and cornices, as well as original fireplaces, creating a sumptuous sense of period style. Find lounge and dining rooms flowing through to the kitchen. Three large bedrooms with original fireplaces, a family bathroom with separate WC. Enjoy the deep backyard, with rear laneway access providing potential for parking plus studio/workshop.
*COVID-19 Announcement*
If you're attending an inspection, we request that you only attend if you are fit and healthy to do so and not under any self-isolation conditions. We request that you maintain a healthy distance from our team and refrain from touching any items/fixtures and doors within the property. Additionally, you might be asked to wear a mask and use hand sanitiser as a request on behalf of the occupier and, if you would like to view something in particular, please request the agent's assistance. Thank you.
