58 Bowen Street, Moonee Ponds VIC 3039
-
4
-
2
-
4
Family home on Expansive Allotment
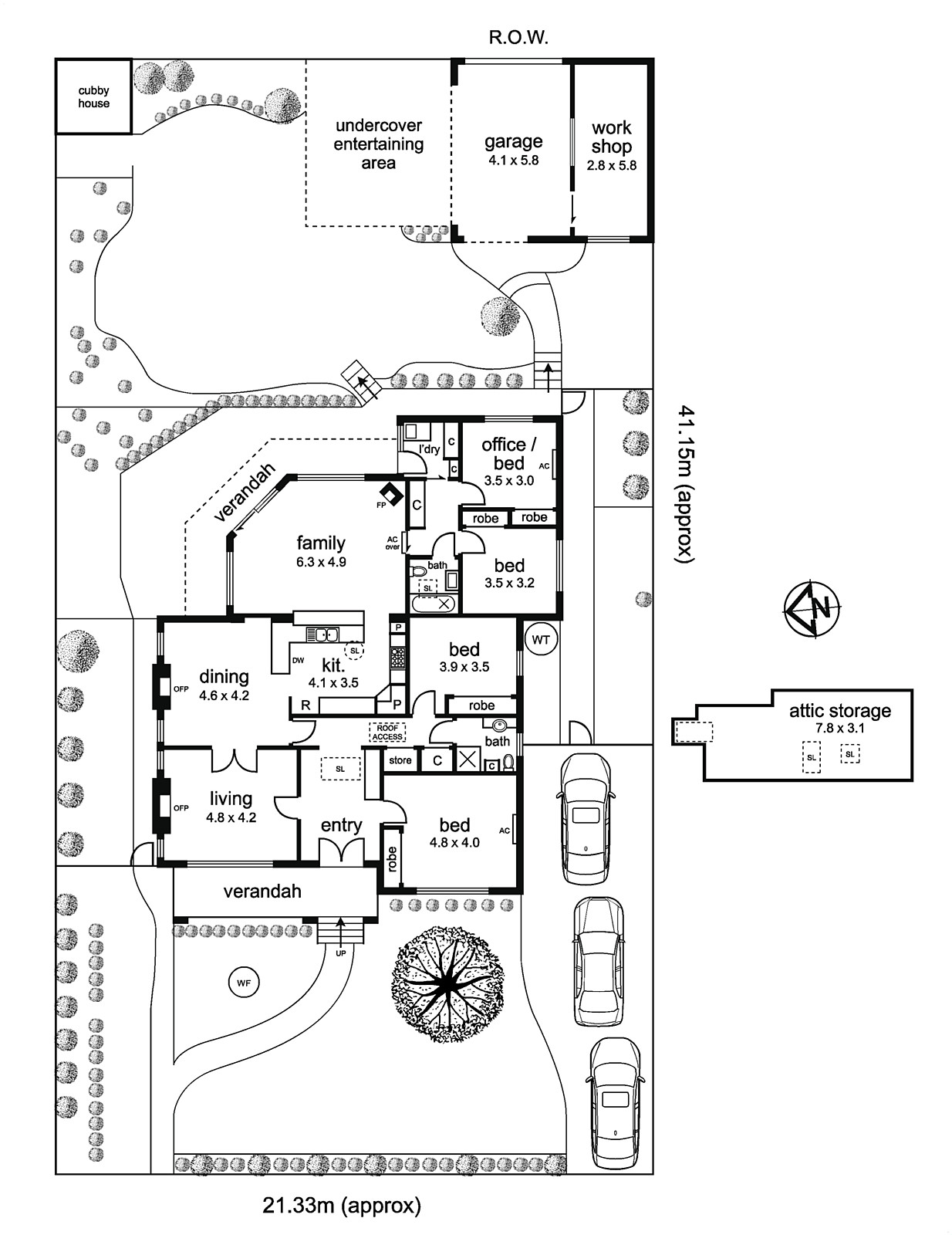
The property also features ducted heating and split-system a/c, open fireplaces and additional wood heater (living area), lead-light windows, high ornate ceilings and solid timber floors, alarm system, as well as a modern family-sized laundry and vast attic storage area - fully lined and insulated. Step outside to wonderfully wide backyard garden including undercover entertaining area with vine-laden pergola, automated irrigation system (front and rear), large workshop, plus secure carport (r/c rollerdoor to ROW) and additional side driveway providing additional parking for 2 cars via the side drive. Conveniently located with easy access to a range of lifestyle attractions including river parks and trails, Moonee Ponds West Primary School, Puckle Street cafes and shops, Maribyrnong Road trams, Holmes Road buses and Moonee Ponds Station as well as the area's elite secondary colleges. Inner-urban family perfection! Nelson Alexander Pty Ltd.
