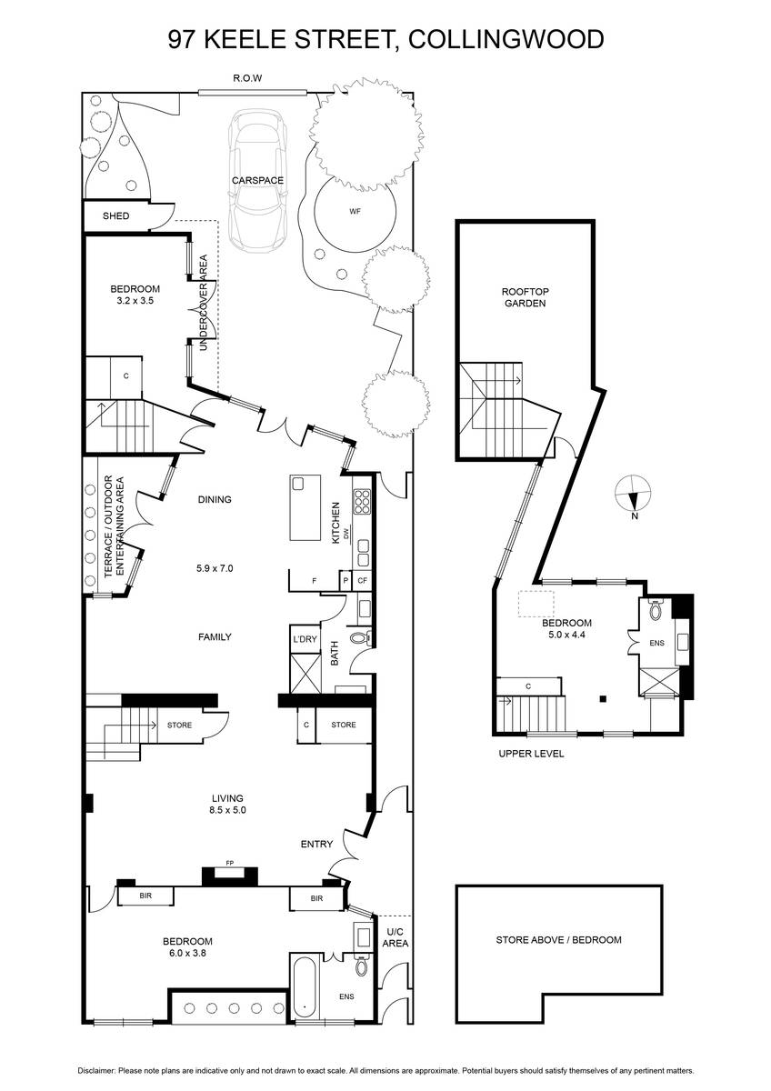
97 Keele Street, Collingwood VIC 3066
-
3
-
3
-
1
Grandeur & style at 'Everfresh Snowball Co'
Showcasing a sense of grandeur and style rarely seen, this opulent home of majestic proportions and soaring ceilings accomplishes a harmonious blend of old-world styling and modern refinements. Both historically and architecturally significant to the area, this former confectionary factory centres around the impressively vast living spaces which are inundated with natural light from the surrounding glass doors and high windows. Unmatched for convenience, the property is within walking distance of cosmopolitan Smith Street and city-bound transport.
- Two substantial living areas occupy the heart of the home, the size of which are highlighted by a soaring, pitched ceiling, large open fireplace, and timber ceiling beams.
- Timeless, white kitchen with large central island bench, stunning marble counters, fully integrated appliances, built in coffee machine, and 6-burner stovetop oven with concealed range, adjoined by ample dining area with courtyard outlooks.
- Three significantly sized bedrooms including one with lush garden views, one occupying the upper level complete with ensuite and built-in cupboards, and a palatial master suite featuring two sets of mirrored built-in robes, decoratively tiled ensuite with large marble-topped vanity, and shower over bath, and storage area in ceiling.
- Third and final bathroom accessed via the living area comprises the central, family bathroom, with large shower, Euro laundry facilities, and access to outside walkway.
- Professionally landscaped courtyard with parking via ROW access, mature garden surrounding a sculptural water fountain, storage shed, separate entertaining terrace off dining area, and additional rooftop garden.
- Additional highlights include ducted air-conditioning, hydronic heating, plantation shutters throughout, and an abundance of storage, including understairs and roof-cavity storage.
- Smith Street cafes, bars and restaurants within walking distance.
- Central to Smith Street trams and Victoria Park train station providing direct access to Melbourne CBD.
- Zoned to Clifton Hill Primary School and Collingwood College.
