95 Mansfield Street, Thornbury VIC 3071
-
4
-
3
-
2
Architecturally designed , contemporary quality in one of Thornbury’s most prized locations
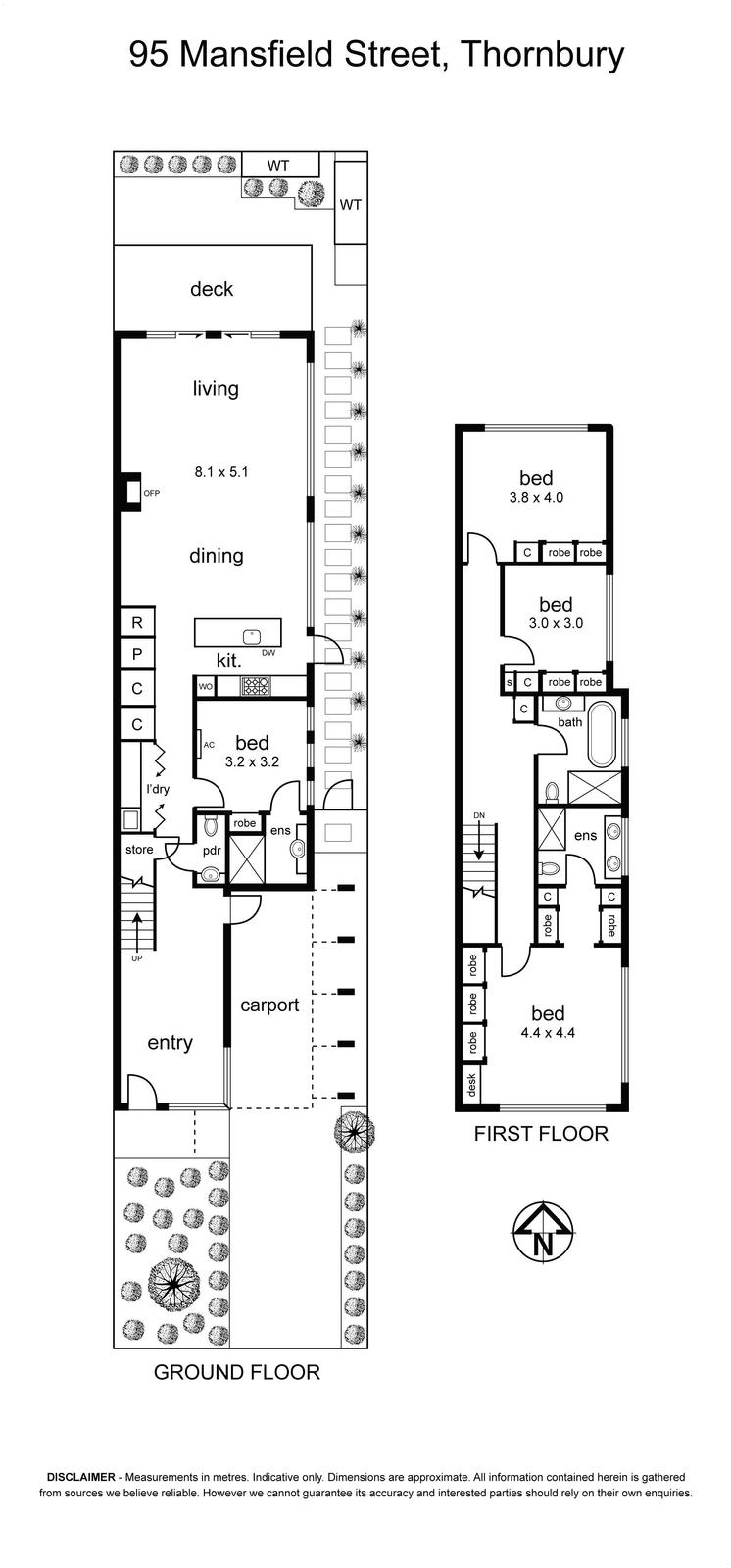
The stately entryway showcases the beautiful timber staircase, soaring ceilings and gorgeous Herringbone flooring, flowing ahead to spacious rear living and dining zones with charming gas log fireplace and grand double-glazed floor-to-ceiling windows. The sparkling kitchen complements perfectly with a wide waterfall island, bold Caesarstone benchtops, a wealth of sleek cabinetry, and premium appliances from both Miele and V-ZUG.
Heating and cooling serve throughout the home, while plush carpets fill each bedroom for instant relaxation. The main resides upstairs with built-in robes, walk-through robe and an elegant double-vanity ensuite. Two further bedrooms with built-in robes feature upstairs beside a full indulgent bathroom, while downstairs adds a flexible guest suite with built-in robe and ensuite, as well as a guest powder room, European laundry and ample storage.
Dine with friends and family out on the north-facing alfresco entertaining deck, nestled in the privacy of the easy-care garden with water tanks tucked away at the rear of the block. Parking is available in the double front carport, with securely gated side access for seamless coming-and-going when needed.
Stroll to Penders Park or local café ‘Jerry Joy’, with an easy walk to High Street for vibrant shopping, cafés, restaurants, boutiques and so much more. Trams travel up to Preston Market and La Trobe University, or down through buzzing Northcote and Fitzroy on your way to the city. Enjoy easy access to Thornbury Station, popular schooling options, shopping centres, recreational facilities and Eastern Freeway entry for convenient commuting.
Seller Review
Spiros was exceptional to work with. His deep
Review by Mim S
