20 George Street, Northcote VIC 3070
-
2
-
1
Character, Class and Westgarth Prestige
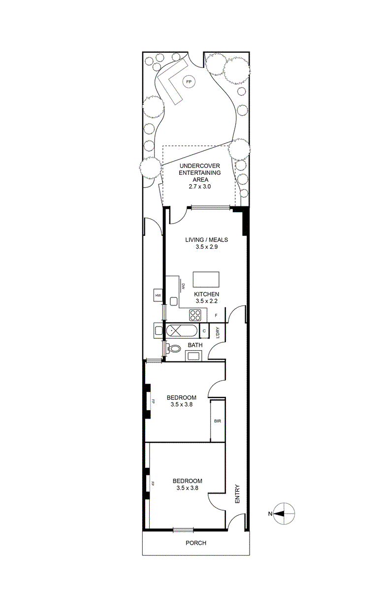
A tree-lined streetscape in an enviable Northcote neighbourhood provides the picture-perfect setting for this timeless terrace showcasing a marvellous mix of Victorian charm and cutting-edge style. Beyond the eternally attractive facade, discover an on-trend interior showcasing two generous bedrooms (master with BIRs) complemented by a deluxe central bathroom complete with shower over bath and integrated laundry facilities. Bathed in natural light, the open-plan living/meals area is also enhanced by a sleek modern kitchen with stone benchtops and moveable island breakfast bar, soft-close cabinetry, Bosch cooking appliances and Fisher & Paykel dish drawer. Split-system heating and cooling, high ornate ceilings, new carpets and solid hardwood floors all add to the allure, plus a wonderfully private backyard with brick-paved undercover patio, plus landscaped perimeter gardens surrounding a built-in bench - perfect for entertaining. Walking distance to the best of Westgarth including Merri Station, both High Street and St Georges Road trams, popular cafes and boutique shops, as well as local schools (Northcote HS zone), parks and Merri Creek trails.
