2/6 Keam Street, Essendon North VIC 3041
-
3
-
2
-
1
Space and style in a serene setting
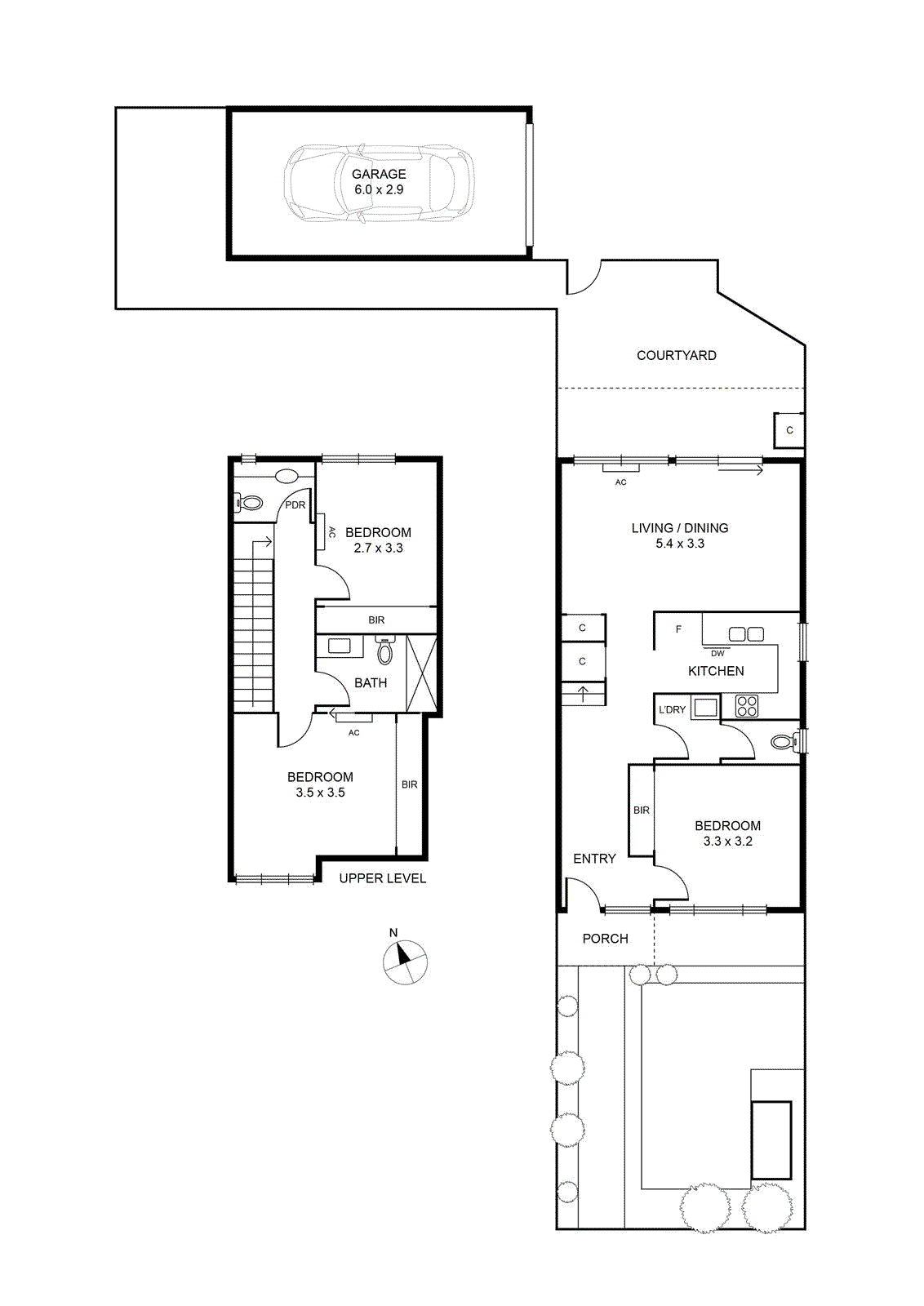
Greeted by high ceilings and an abundance of natural light, the home’s impressive interior comprises three generous bedrooms with built-in robes all complemented by a modern two-way bathroom with frameless shower and two additional WCs.
Adding to the appeal is a sizeable open-plan living/meals area accompanied by a well-appointed kitchen with stone benchtops, Smeg cooking appliances and Bosch dishwasher.
Other stand-outs include split-system heating/cooling (both levels), ducted vacuum and solid hardwood floors, plus a private north-facing courtyard to relax or entertain and remote-control garage.
Footsteps to Keilor Road trams along with a range of cafes and restaurants, it’s also close to shops and supermarkets, popular schools (Buckley Park College zone) and kinder/childcare providers, as well as easy access to DFO and Citylink.
