30 & 32 Military Road, Avondale Heights VIC 3034
-
7
-
2
-
5
Expressions Of Interest, Closing Thursday 30th April at 1:00pm
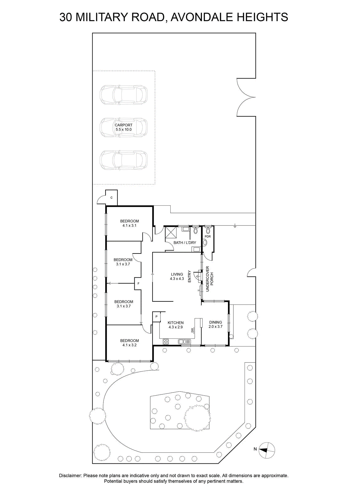
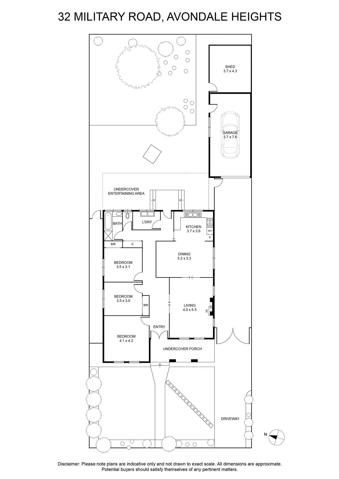
An exceptional and rare offering in the heart of Avondale Heights – two substantial homes on a combined allotment of approximately 1,167sqm, to be sold together. Whether you're an investor, developer, business owner or extended family buyer, this is a prime opportunity with outstanding potential (STCA).
Positioned in a highly sought-after growth pocket, this significant landholding opens the door to a range of possibilities including redevelopment, multi-dwelling development, medical or consulting use, or long-term investment with strong rental appeal (all Subject To Council Approval).
The Opportunity
* Combined land size of approx. 1,167sqm
* Two established homes with functional floorplans
* Multiple living zones and generous bedrooms across both dwellings
* Garaging, carport and ample off-street parking
* Wide frontage and excellent accessibility
* Outstanding development or business potential (STCA)
Both existing residences offer comfortable accommodation with multiple bedrooms, spacious living areas, kitchens with adjoining dining zones, bathrooms, laundry facilities and outdoor spaces. The layout of each home provides immediate rental potential while future plans are explored.
Prime Avondale Heights Location
Situated in tightly held Avondale Heights, this property enjoys:
* Approx. 12km to Melbourne CBD
* Easy access to CityLink and the Western Ring Road
* Close proximity to Highpoint Shopping Centre
* Walking distance to local shops, cafés and public transport
* Nearby Maribyrnong River trails and parklands
* Quality local primary and secondary schools
* A short drive to Essendon and surrounding lifestyle precincts
Avondale Heights continues to experience strong demand due to its family-friendly atmosphere, riverside lifestyle and convenient city access, making this a smart acquisition for now and the future.
Endless Potential (STCA)
Opportunities of this scale in established inner-north-west locations are increasingly rare. Explore the potential to:
* Redevelop the site into multiple townhouses
* Create a boutique residential project
* Establish a medical or professional premises (STCA)
* Landbank in a high-growth corridor
This is a blue-chip landholding with flexibility, scale and location on its side.
Opportunities like this don’t come along often. Secure your future in one of the area’s most tightly held pockets.

