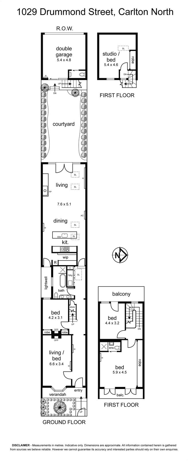
1029 Drummond Street, Carlton North VIC 3054
-
5
-
2
-
2
A classic Victorian balcony terrace that reveals more than expected
Attention to detail, quality materials and bespoke touches are evident throughout, creating interiors that feel refined yet quietly understated.
A formal living room with a gas log fire sets the tone, introduced by a traditional arched side hallway and complemented by high ceilings that enhance the sense of space. Also on this level is a well-proportioned bedroom with built-in robes and a stylishly appointed bathroom. To the rear, the home opens into an impressive contemporary addition where vaulted ceilings elevate the scale of a generous open plan kitchen, dining and living domain, complete with a Domina fireplace and leafy views to the private established courtyard.
The kitchen is both functional and refined, centred around a freestanding island with a sandblasted marble benchtop, complemented by quality appliances including a Falcon stove and oven and an integrated Asko dishwasher, along with a well-designed butler’s pantry.
A traditional staircase leads to the upper level where two bedrooms are positioned. The full width main bedroom enjoys balcony access, large built-in robes and its own ensuite, while double glazing ensures a peaceful night’s sleep.
Above the remote garage, a versatile studio provides valuable space for guests, teenagers or working from home, complemented by a convenient powder room.
Extras include a European laundry, hydronic heating, ceiling fans, split system heating and cooling, storage and more.
An easy choice in a premium location, a short stroll to trams on Lygon and Nicholson Streets, local shops and cafes, Princes Park, bike paths, Rathdowne Village, universities and schools, with zoning to Princes Hill Secondary College and the city close by.
