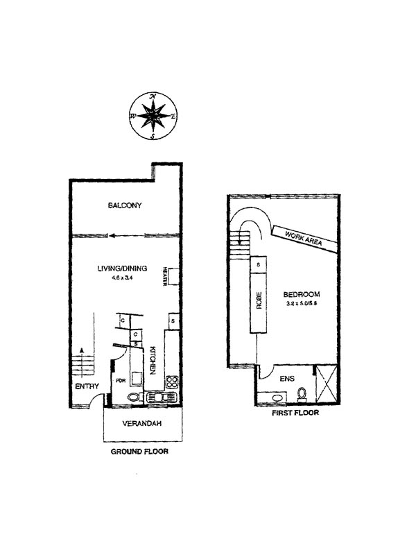
8 Little Elgin Street, CARLTON VIC 3053
-
1
-
1
-
1
Something Special
Close to Universities, Hospitals, Lygon Street shops & cafes, transport, CBD & more. Features: Heating & Cooling, Parquetry Flooring.
Agent: Nelson Alexander Pty Ltd
