7 Montrose Court, Greenvale VIC 3059
-
4
-
2
-
2
"VALLE VERDE"
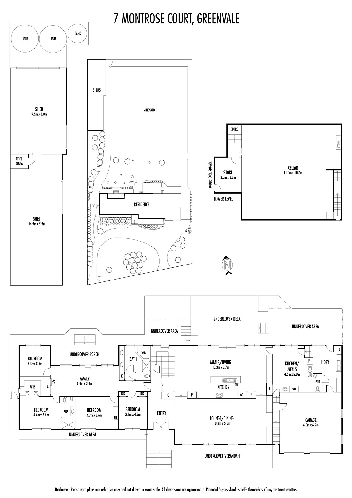
Designed around a fully-operational boutique vineyard (approx 750 vines), this spectacular home delivers an aspirational family lifestyle along with everything in place to continue production of the property's award-winning wines. On a one-acre block in one of Greenvale's most exclusive pockets, the home itself comprises four bedrooms (large master with WIR and ensuite), main bathroom and powder room (third WC). Spacious living zones include elegant formal lounge and dining, superb kitchen and open-plan family/meals area leading out to an al-fresco entertaining deck complete with wood-fired oven, cafe blinds and vineyard views. Add to this a second European-style kitchen/meals area, retreat/living room, ducted heating and split-system a/c, solar power (3.9kW), double garage with internal entry and established gardens all round. Complementing the Chardonnay, Shiraz and Cabernet vines (all professionally trellised, irrigated and netted) is a large external workshop/storeroom, associated machinery and tools, plus a vast purpose-built under-house cellar/wine-making area (approx 120sqm). Luxury, land, location and your own vineyard - a lifestyle opportunity like no other!
