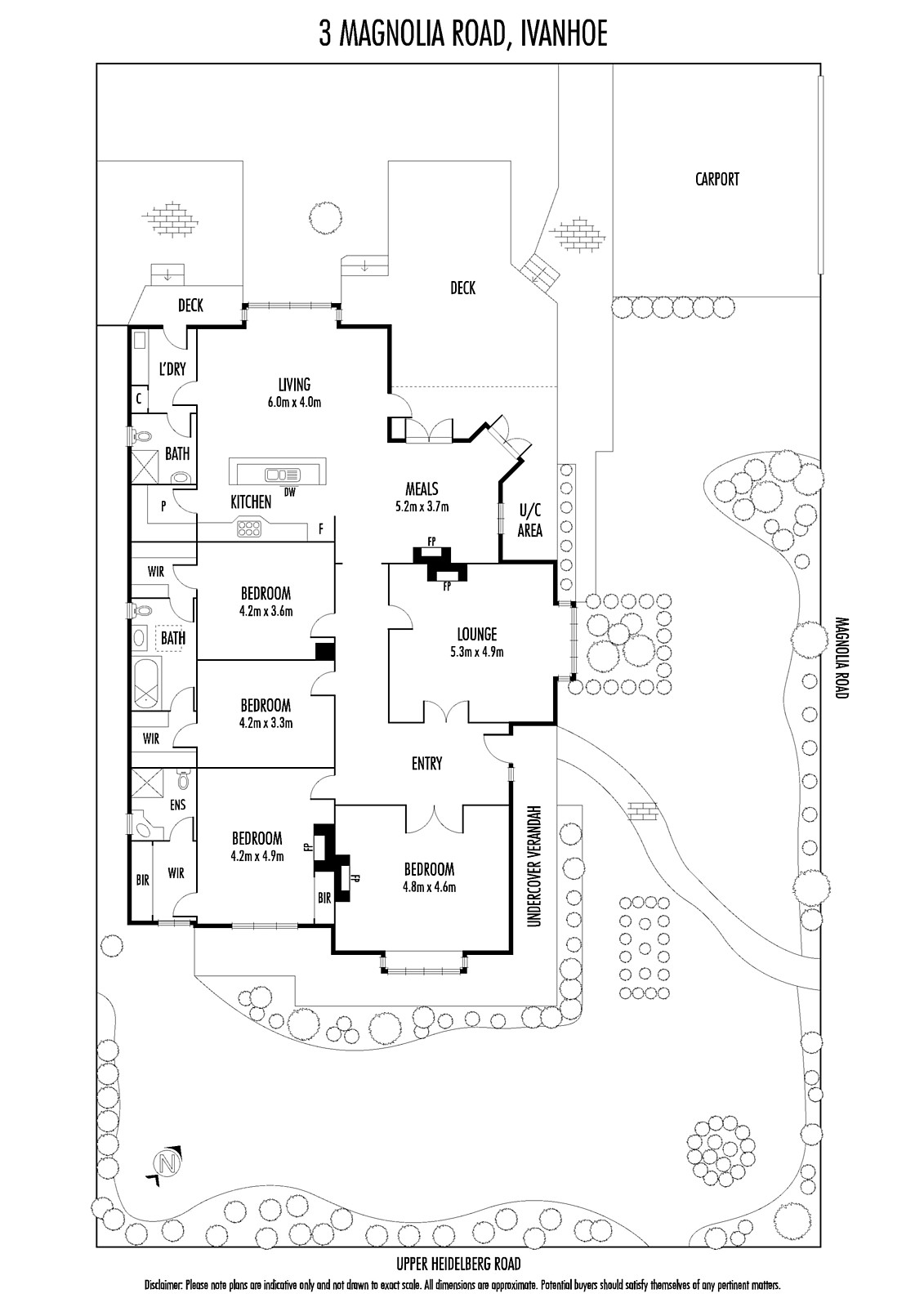
3 Magnolia Road, Ivanhoe VIC 3079
-
4
-
3
-
2
Beautifully renovated, superbly positioned
Owners Notes
WHAT WE LOVE ABOUT THIS HOME:
We fell in love with this home upon our first inspection- on Auction day! We were drawn to its picturesque façade and period features. The garden views from many rooms, open plan living area and large bedrooms have made this a very comfortable place to live. We have celebrated many family milestones here and it will be very sad to say Goodbye.
WHAT WE LOVE ABOUT IVANHOE:
· Easy access to the CBD
· Friendly community and neighbours
· Cafes/restaurants
· Tranquillity, tree lined streets and parks
· Shopping precinct
WHY WE ARE SELLING:
Our children have all grown up and left, so it’s time to downsize. We definitely hope to stay in the area.
OTHER INFORMATION:
The home was extensively renovated in 2003, adding new extension on the side of the home and three bathrooms on the back. Also a new kitchen and pantry.
