57 Kendall Street, Preston VIC 3072
-
4
-
2
-
2
Classic charm meets contemporary family living!
A total renovation, with a firm focus on carefully considered quality, has completely transformed this home into a spectacular family sanctuary.
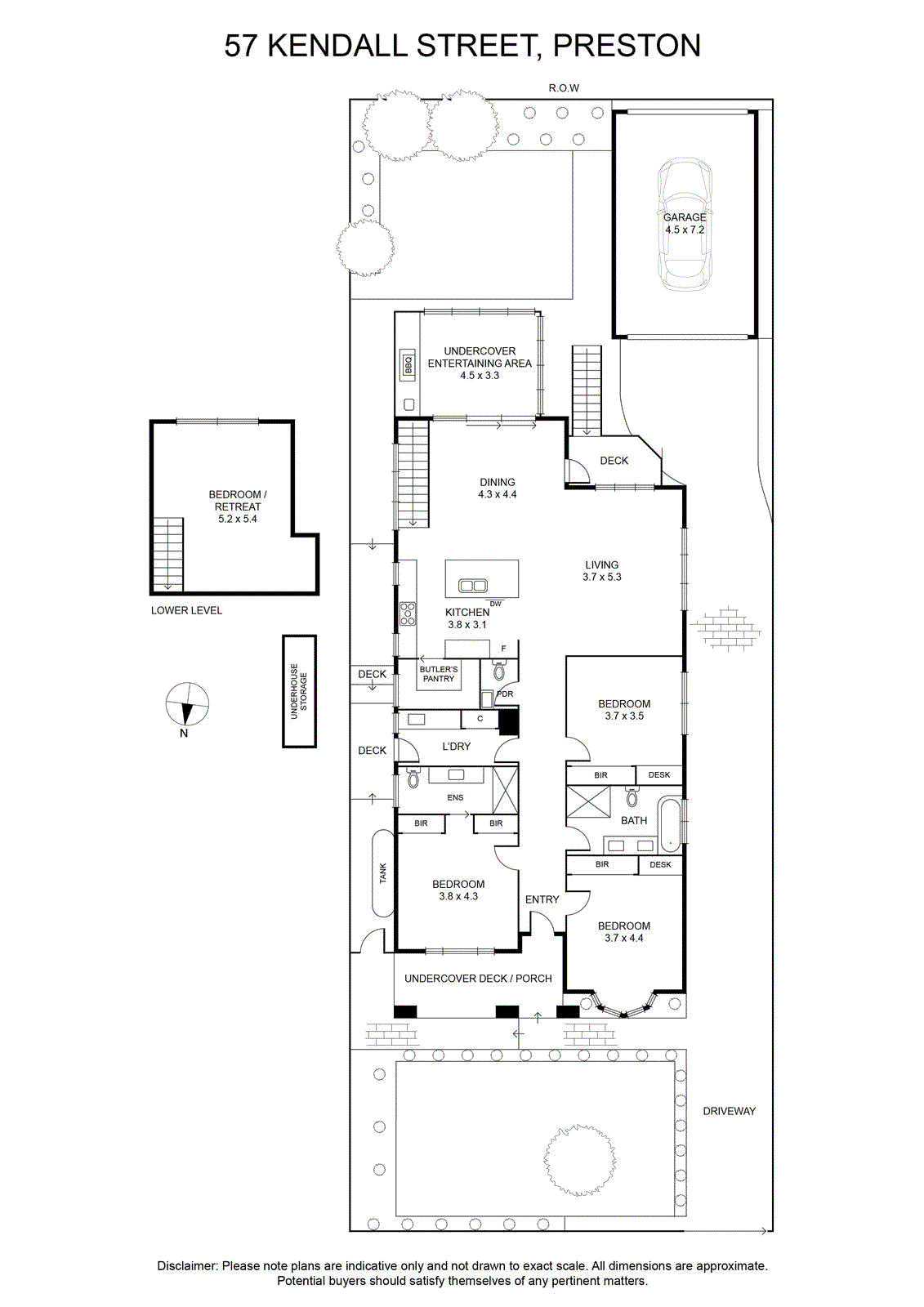
At the heart of the home, a light-filled open-plan family domain wraps around a kitchen showcasing a butler’s pantry, plumbed fridge cavity and soft-close cabinetry, home to premium appliances including a 900 mm induction cooktop over a 900 mm oven. A wall of glass sliders allows a seamless transition to an outdoor entertainment zone.
Backdropped by a stunning view of the city skyline that are mesmerising by night, it is finished with terrazzo tiles and complete with a BBQ and storage options under a stone benchtop. Bi-fold windows with tracked blinds and a motorised louvre roof allow you to control the sun and the shade in an all-weather precinct family and friends will love.
Complete with a fully tiled, stone-detailed ensuite, the main bedroom is complemented by three further bedrooms. Sharing a stunning family bathroom that is fully tiled and features a back-to-the-wall bath and a stone-detailed vanity, two are positioned on the ground floor, with the fourth tucked away on the lower ground floor.
Enjoying the peace and privacy of its own level, it boasts retreat-sized dimensions, making it ideal as teen accommodation or equally suited as an additional living area if desired.
Set behind a remote gate, ducted refrigerated climate control (zoned), over-height doors, fitted built-in robes, fitted desks to two bedrooms, quality carpet, Sydney Blue Gum flooring, a fitted laundry accessing in-roof storage via drop-down stairs, insulation to the floor, ceiling and walls, under-house storage, a water tank and an irrigation system lead a long list of premium inclusions.
A short stroll from the Merri Creek Trail, you can cross the Harding Street footbridge to the tram on Nicholson Street or walk to the other end of the street for the tram along Gilbert Road. Miller Street Village, High Street and the Preston Market, all readily accessible, only add to the lifestyle appeal.
