32 Barnett Street, Kensington VIC 3031
-
4
-
2
Family flexibility in the heart of Kensington
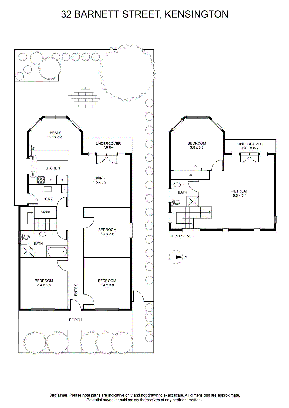
Step inside to discover a light-filled interior comprising four large bedrooms (main with built-in robes) complemented by two full bathrooms – one on each level.
Family appeal is enhanced by the inclusion of a versatile lounge (upstairs), open-plan living/dining area to the rear and accompanying timber-top kitchen.
Other features of the home include gas heating and split-system air conditioning (both levels) for year-round comfort, along with high ceilings, solid hardwood floors, full-size laundry and under-stair storeroom.
Completing the picture is an undercover balcony (double-doors from the lounge) and sunny backyard with brick-paved entertaining area, established perimeter gardens and high fences for exceptional privacy.
A short stroll to village cafes and shops along with both Kensington and Macaulay train stations (different train lines), it’s also close to Racecourse Road trams and restaurants, local schools and Moonee Ponds Creek Trail, as well as easy Citylink access.
