929 Mt Alexander Road, Essendon VIC 3040
-
4
-
3
-
4
Refined art deco elegance with exceptional versatility
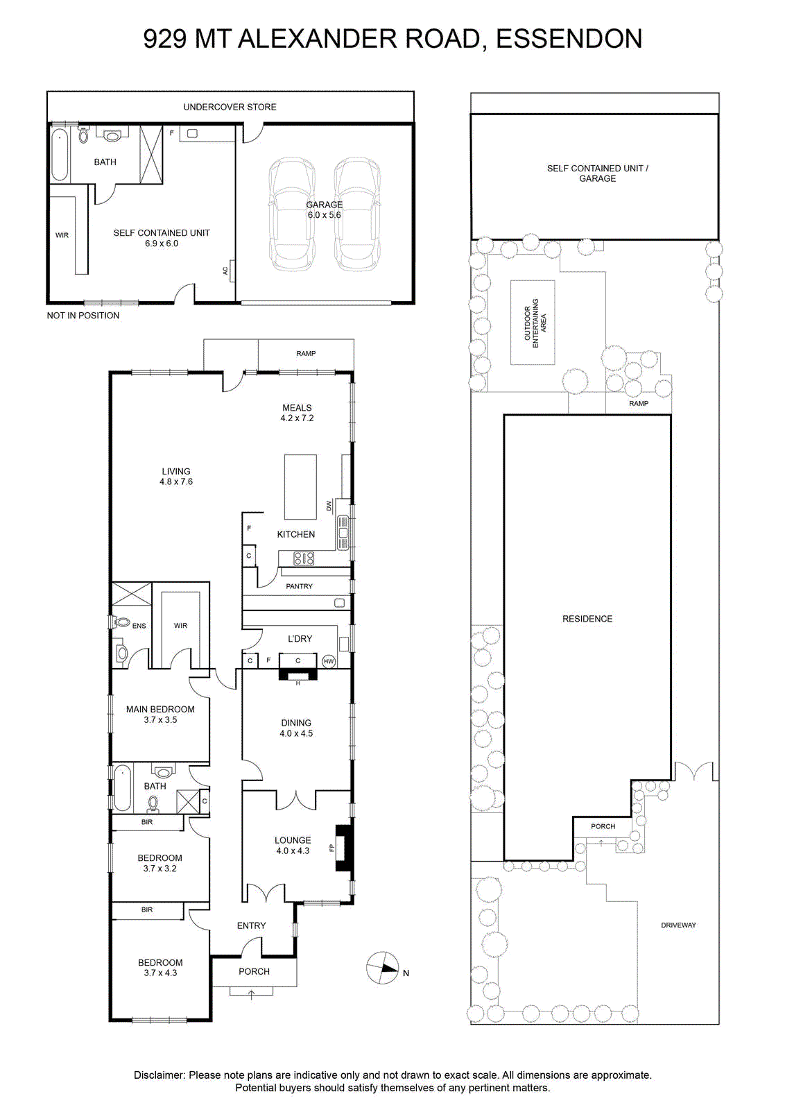
Entering from the porch, a formal living area spans across two large rooms, each with brick fireplaces, offering an adaptable living area that can be arranged to suit your needs. At the front of the home, a large bedroom with shuttered windows and built-in robes is complemented by a second bedroom, also with robes, and a stylish family bathroom with a large bath. Along the central hall, the master suite is well positioned with an ensuite and generous walk-in robe, creating a welcome space to retreat. Opposite, a large laundry is sure to handle daily tasks with ease, providing ample storage and a drying cupboard.
At the rear of the home, a light-filled and spacious living and dining area surrounds the large country style kitchen. Here, marble benchtops, an Ilve stainless steel cooker and extensive storage frame the central island bench, creating a natural place to gather. A well-considered butler’s pantry is tucked behind the kitchen, with ample storage and its own sink.
Moving outside, a well-established and private garden provides options for entertaining or play. Spanning the width of the property, a double garage is complemented by a self-contained apartment, complete with a sleeping and living area, a large bathroom, a walk-in robe and a kitchenette. Ideal for guests, teens or whatever suits your needs, the options for versatility here are unparalleled.
Well positioned in the heart of Essendon and extremely well served with numerous public transport options, including Mt Alexander Road tram and bus connections and easy access to Essendon Station. Within the school zones for both Essendon Primary School and Buckley Park College, convenience for families adds appeal. Ducted heating and cooling keep things comfortable, and off-street parking for two cars adds amenity. Faultlessly finished throughout, with modern and well-considered fittings and fixtures, and the added versatility of a self-contained rear apartment, this wonderful family home wants for nothing.
