733 Drummond Street, Carlton North VIC 3054
-
2
-
1
Charm, beauty & location
Please REGISTER to attend an inspection. Advertised Inspection Times displayed on this page are subject to cancellation or change up until 12pm on the day of the viewing.
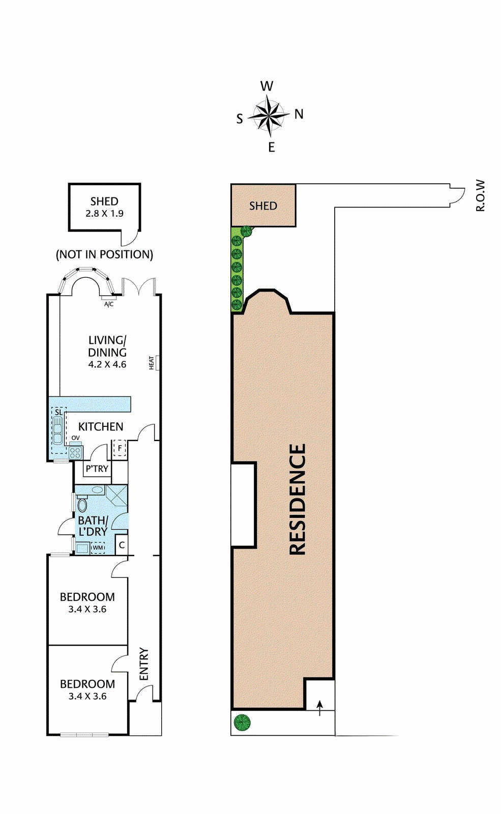
Extra-wide and enviably positioned for an amazing Rathdowne Village lifestyle, this superbly-proportioned 2 bedroom Edwardian is desirably poised for city-edge perfection. An inviting period presence on a beautiful divided street introduces this superb solid brick residence that offers a comfortable single-level setting previously redesigned for functional living with a touch of retro flair. Capturing light with a cleverly-conceived layout, an entrance hallway extends past 2 well appointed bedrooms before a high-walled light court and a central bathroom. A large, bright kitchen is next with its walk-in pantry and breakfast bench before a polished timber cathedral ceiling opens up a spacious living area that flows directly to a fitted-seat dining bay. French doors reveal a private paved courtyard garden that includes a big lock-up shed and handy pedestrian ROW to Fenwick Street. Additional features include a laundry area, split-system air-conditioning to lounge and gas wall heating, great storage and hardwood floorboards. The space to live comfortably in an area that locals simply cant get enough of with its fine dining and cafes on Rathdowne Street, Princes Park, Lygon Street shopping, Cinema Nova, trams, major hospitals, Melbourne University and schools.
