The numbers are in. Discover how the market is performing in your area with the latest Nelson Alexander Suburb Report.

Menu

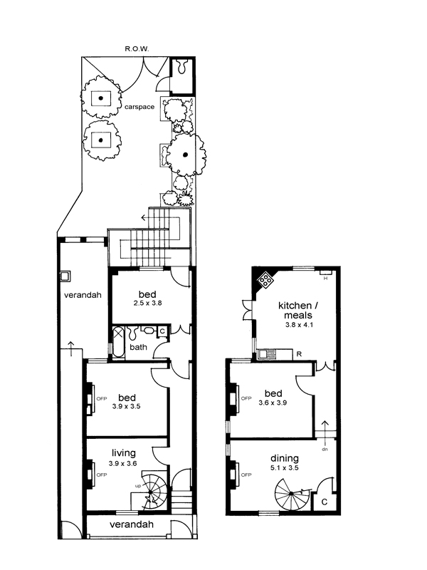
50 Arden Street, NORTH MELBOURNE VIC 3051

  • 3
  • 1
  • 1

FULL OF WARMTH AND CHARACTER

This distinctive Victorian terrace offers light-filled living over two levels, close to tram routes, major hospitals and Royal Park. Set high above the street, it is built on the ground floor plus basement footprint characteristic of terrace houses on the slope of neighbouring Parkville. Entry is to an arched hallway leading to a spacious sitting room (potentially a fourth bedroom), two bedrooms and a tiled bathroom - the bedroom to the rear has an external staircase to the courtyard below. Downstairs from the sitting room are a second living area, a sunny third bedroom, and an unexpectedly large kitchen and meals area with original French doors opening to the private north-facing courtyard (with ROW access). A path on the western side has a gate opening to the street frontage. In sound liveable condition with open fireplaces and other period detail, this eclectic property has exciting scope for further renovation and extension (STCA).

Contact Agent


This site is protected by reCAPTCHA and the Google Privacy Policy and Terms of Service apply.

 
  • 3
  • 1
  • 1

Property Sold

Sold 28/02/2012 $785,000


North Melbourne

Find out more --->