The numbers are in. Discover how the market is performing in your area with the latest Nelson Alexander Suburb Report.

Menu

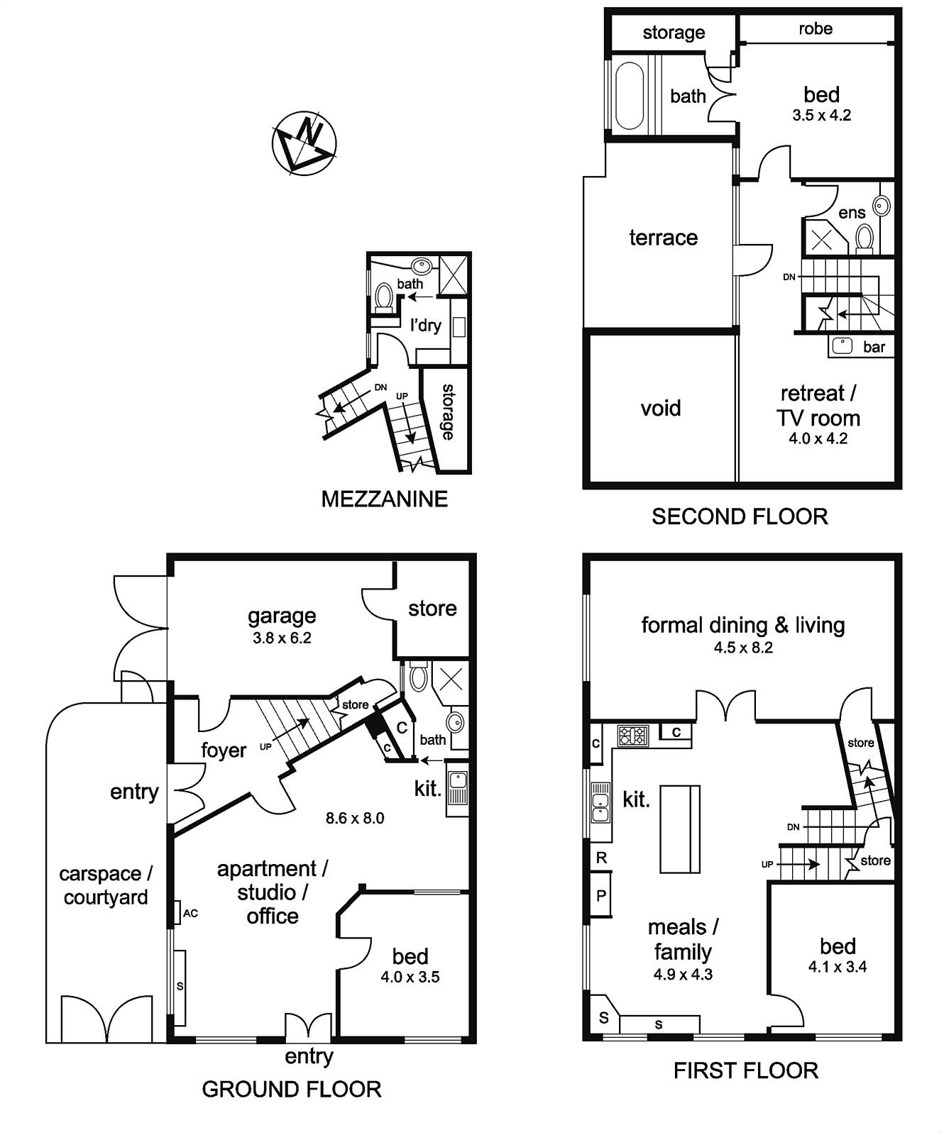
44 McKean Street, Fitzroy North VIC 3068

  • 3
  • 3
  • 2

Lynnley Terrace

The ultimate warehouse home with an abundance of light, space and original features dating back to its 1912 beginnings as a shoe factory. Defined by its architect-designed conversion, energy efficiency and floorplan versatility, this warehouse showpiece delivers the complete city-edge family experience or work-from-home lifestyle moments from Edinburgh Gardens, Queens Parade cafes and trams. Grand proportions and an abundance of natural light create an outstanding environment over three levels (flexibility to zone as two separate dwellings) comprising three large bedrooms (upstairs master with deluxe ensuite, adjoining retreat and expansive terrace), two further bathrooms, multiple living spaces including formal lounge and dining, vast ground-floor office/living area with towering ceilings, open-plan family/meals complemented by a superb granite-top kitchen with quality cooking appliances and integrated double dishwasher. Add to this in-slab heating (downstairs) and hydronic heating (upstairs), split-system air conditioning, double-glazed windows throughout, filtered heat recovery ventilation, solar hot water, low-energy lighting, polished hardwood floors, low-VOC finishes, exposed beams and brickwork, alarm system and data cabling throughout, excellent storage spaces, private courtyard and so much more. Complete with its own street frontage, two separate entrances and two secure off-street car spaces (one undercover), it's also close to North Fitzroy Village shops and cafes, primary and secondary schools, Smith Street's renowned restaurants as well as easy access to the Eastern Freeway. A warehouse conversion like no other! Nelson Alexander Pty Ltd

Vendor Review

You can't go wrong with Nelson Alexander    

James, Stewart and the team at Nelson Alexander were commissioned to sell our home recently. We found them to be professional, responsive and understanding at all times. Their personal approach and follow up with buyers was excellent and helped secure a good turn-out at auction. With Arch Staver as auctioneer, we achieved a price well above expectations. We are very happy with the experience and highly recommend Nelson Alexander for selling property in the inner north.

Review by Iris & John


Contact Agent


This site is protected by reCAPTCHA and the Google Privacy Policy and Terms of Service apply.

 
  • 3
  • 3
  • 2

Property Sold

Sold 24/09/2016 Undisclosed


Fitzroy North

Find out more --->