16 Courtney Place, North Melbourne VIC 3051
-
3
-
2
-
1
Great location
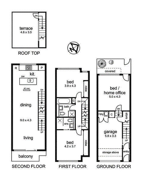
In a blissfully quiet yet enviably convenient inner-city cul-de-sac, this contemporary three level townhouse offers incredible architecture, natural light and multiple outdoor spaces to enjoy. Compromising of two large bedrooms (both with built-in robes) complemented by a private master ensuite and stylish main bathroom - both with concealed cisterns and floor-to-ceiling tiles. Further to this, an open-plan living/dining area revealing a full-width balcony enhanced by a tastefully-appointed kitchen with stone-top island breakfast bar, ample cupboard space and a full suite of appliances. Adding to this there is a home office or second living area leading out to a private courtyard as well as a sensational rooftop terrace. Other features include split-system heating/cooling, excellent storage options, remote-control garage and delightful residents' garden to the rear. Nearby to both Flemington Road and Queensberry Street tram lines, the area's renowned hospital/university precincts, local schools (University HS zone) and the open spaces of Royal Park, as well as Errol Street cafes/shops and Queen Victoria Market.
